Quantcast
Channel: The Devoted Classicist
Viewing all 135 articles
Browse latest View live

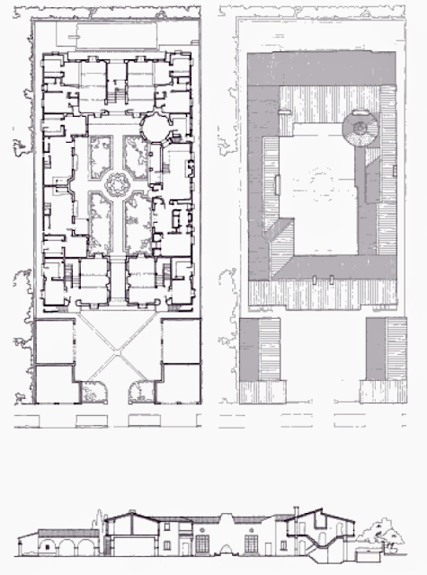
Lakeview House, Palm Beach

$
0
0
Lakeview House, Palm Beach, Florida.
Photo:  Cleveland Public Library.
The Devoted Classicist has been enthralled with a twentieth century neo-classical residence known as Lakeview House in Palm Beach since reading about it in the 1961 book 100 Most Beautiful Rooms in America as a youngster.  In the early 1990s, working on a John Tackett Design project nearby, he discovered it at 319 El Vedado Way, shuttered for the summer but still as it appeared in the book from outward appearances.  Hearing rumors early last year that it had been razed led to a search that found it still standing, but being offered for sale as a "tear down" for $5.5 million.

Lakeview House, 319 El Vedado Way,
as it appeared in real estate listings.
Image:  Corcoran.
Despite what appeared to be evidence to the contrary, various real estate sources described it as hopelessly out-dated and in unretrievably poor condition.  The offering to "custom build your dream home on one of Palm Beach's most beautiful estate area streets" was alarming. 

Google Map showing the location of
Lakeview House, Palm Beach, Florida.
Granted, Lakeview House is not the over-scaled pile of a smack-down interpretation of opulence so popular with so many of today's mansion seekers, but is it really completely undesirable?  As in all real estate transactions, it only takes one person to want it.  Lakeview House was bought in February, 2012, for $5.2 million by Virginia Mortara, widow of Michael Mortara who was a senior partner at Goldman Sachs.  Thankfully, instead of being razed, it is currently being restored.
Lakeview House under restoration, February, 2013.
Photo by John J. Tackett for The Devoted Classicist blog.
The house has an illustrious history.  According to Palm Beach historian Augustus Mayhew who wrote an article about the house for New York Social Diary, architect Clarence Mack described his own style in Palm Beach as "Tropical Empire."  Cleveland born Mack, who moved to Florida in 1935, typically lived in each of his houses before selling them;  that is thought to be the case for Lakeview House, built in 1936 according to sources.

The principal (south) facade of Lakeview House.
Dated January, 1940.
Town of Palm Beach Building Records.
Image via Augustus Mayhew for  New York Social Diary.
In addition to being architecturally significant, Lakeview House has had a history of interesting owners.  Clarence Mack sold the house to John Wendell Anderson and his wife who made it their winter home starting in the 1942-43 season.  Anderson was a Detroit attorney who organized Ford Motor Company and held a large financial interest.  Anderson was also a former consul-general in Montreal, but it was the Ford connection that really built his wealth. 

A self-portrait by Channing Hare.
Image:  Liros Gallery.
After Anderson's death, the house was sold to Channing Hare, a portrait artist well known in the social circles of the day.  A member of both the exclusive B & T (Bath and Tennis Club) and the Everglades Club, Hare was married but separated from his wife.  Referred to as 'Uncle Bunny' by his adopted son Stephen "Stevie" Hopkins Hensel Hare, he also owned a large villa, "Son Julio" in Majorca (possibly now the hotel Son Julia?).  In 1952, Hare moved to an apartment on Worth Avenue and sold the house to Audrey Emery.

Princess Anna and Grand Duke Dmitri Pavlovitch.
via forum.alexanderpalace.org.
Born in Cincinnati, Ohio, Anna Audrey Emery was the youngest daughter of a real estate millionaire who became Princess Anna after her 1926 marriage to H.I.H. Grand Duke Dmitri Pavlovitch, the grandson of Emperor Czar Alexander III.  After divorcing in 1937, she married Prince Dimitri Djordjadze.  That marriage ended in divorce as well, and she was known as Mrs. Audrey Emery.  References mention that interiors of Lakeview House were featured in the January, 1953, issue of Town & Country magazine, but no digital images have been found.  The two images in the book 100 MOST BEAUTIFUL ROOMS IN AMERICA by noted photograper Jerome Zerbe date from the Emery occupancy, however.

An evening view of Lakeview House.
Note the uplights in the urns on tall plinths.
Photo by Jerome Zerbe from
100 MOST BEAUTIFUL ROOMS IN AMERICA
The grand salon during the occupancy
of Audrey Emery.
Photo by Jerome Zerbe from
100 MOST BEAUTIFUL ROOMS IN AMERICA
Audrey Emery's son from her first marriage, Prince Paul Romanoff-Ilyinsky, a.k.a. Paul Ilyinsky, was Mayor of Palm Beach for three terms.
A 1956 news clipping.
Via Augustus Mayhew for NYSD.
In 1956, Lakeview House was sold to Col. and Madame Jacques Balsan.  Jacques Balsan was a pioneer of flying and heir to a fortune in his family's textile manufacturing business which supplied the French army with uniforms from the time of Napoleon onward.  He is best known in this country, however, as the second husband of Consuelo Vanderbilt, whom he married immediately after her divorce from the Duke of Marlborough (of Blenheim Palace) in 1921.  (Later, the marriage to the Duke was arranged to be annulled).  Downsizing from their famous Maurice Fatio-designed house Casa Alva in Manalapan (listed for sale in 2007 for $23 million and finally sold a few months ago for $6.8 million), Jacques Balsan died in November of 1956.  But his wife was known as Madame Balsan for the rest of her life.

A portrait of Madame Balsan
by Channing Hare, 1956.
NYSD.
Madame Balsan, the only daughter of William K. and Alva Vanderbilt (later Belmont), used the home as a seasonal winter retreat.  In summers, she moved, along with some of ther favorite furnishings to Southampton, Long Island.

Consuelo Vanderbilt Balsan
in the grand salon of Lakeview House.
Life Magazine August 4, 1964.
The Balsan grand salon famously held two pairs of lacquer cabinets on stands, one pair in red and the other in black.  Horst's color photos of the Balsan interiors were featured in an earlier post of one of this writer's favorite blogs, The Downeast Dilettante.  After Madame Balsan's death in 1964, her grandson Lord Charles Spencer-Churchill inherited the house and contents;  the furnishings were sent to auction (with photos of the rooms appearing in Augustus Mayhew's article in NYSD) and the house was bought by Alice Warfield Tyne Earthman, previously of Nashville.

The late Alice Tyne.
Alice Tyne married her brother-in-law Girard Polk Brownlow in the grand salon of Lakeview House in 1967.  In 1971, she divorced Brownlow and married Cutler Godfrey.  In 1972, Lakeview House was leased to Kitty Miller, daughter of Jules Bach and widow of Broadway producer Gilbert Miller.
The cover of Celia Lipton Farris' autobiography
MY THREE LIVES.
Victor and Celia Farris were the next owners of the house.  Married since 1956, he was known as the inventor of the paper milk carton according to popular legend, and she was a Scot-born singer/actress.  The Farrises were frequent hosts to parties in Lakeview House, often honoring foreign nobility and Hollywood stars.  Their lifestyle was recorded in the 1977 British documentary Whicker's World. 

Mary Duncan Sanford (left) with Celia Farris
photographed in the grand salon of Lakeview House.
Photo via NYSD.
After her husband's death in 1985, Celia Lipton Farris focused on philanthropy and was named Dame Grace of the Venerable Order of Saint John (of Jerusalem).  After her death in March, 2011, Lakeview House was listed for sale by Corcoran Group Real Estate.

Lakeview House as seen from the street, 2011.
Corcoran.
The rear of Lakeview House, 2011.
Corcoran


The pool pavillion of Lakeview House, 2011.
Corcoran.
The swimming pool of Lakeview House
and the view towards the Lake Worth Lagoon, 2011.
Photos taken by Augustus Mayhew in 2012 may be seen in an April, 2012, article written for NYSD here.  With 2012 being a very busy year for filings of Palm Beach County demolition permits to make way for new mega-mansions, thanks is given for the preservation of Lakeview House.
The new owner of Lakeview House
Virginia "Gina" Mortara.
Palm Beach Shiny Sheet.

Mongiardino for Princess Firyal, London

$
0
0
A proposal for the two long walls of the grand salon
of the London house of Princess Firyal of Jordan from
ROOMSCAPES
The genius of decorator Renzo Mongiardino, 1916 to 1998, was rooted in his early architectural and theatrical design experiences, creating fantastic thematic interiors, often from only a shell.  An example of his interpretation of an Orientalist theme was carried out for the London house of Princess Firyal of Jordan.  The house in the fashionable Belgravia section had been cleared of most detailing by the previous owner.  It is comprised of two houses from the first half of the nineteenth century joined by a high-ceilinged hall that was formerly a stable but converted to a ballroom with high oeil-de-boeuf windows and balconies at each end. 

An early conceptual study for the grand salon.
from the Mongiadino monograph
ROOMSCAPES
According to an article in the May, 1987, issue of Architectural Digest, Mongiardino told the princess, "You're a beautiful Oriental woman, why not an Oriental house?  It's right for England.  It's in the culture.  It's Brighton!"


Two different schemes for the four walls
of the grand salon by Renzo Mongiardino
for Princess Firyal of Jordan's London home.
ROOMSCAPES
Mongiardino developed two schemes for the grand salon.  Both schemes divided the walls into three sections, but the interpretations varied with the scheme in the first four drawings in the series shown above being more neo-classical.  Exhibiting three large eighteenth-century French tapestries against a background of vivid red-pink damask, this scheme was not selected to be realized.  The chosen scheme, shown in the bottom four drawings in the series, has lengths of silk printed in gold with different oriental motifs like celebratory banners.  The proposal shows these flags of variegated violet alternating with coral, malachite green with ivory, and topaz with blue, but only a deep dusty rose for the banners was used in the room as realized.  The round windows, with two false windows added at each end when the balconies were closed off, are anchored with a decorated band.  The wainscot is dark slate blue overlaid with a damask motif in ochre and silver-gray taken from a painting by Gentile Bellini.  Above the wainscot, stretched silk is hand printed with a trellis grid containing pale green medallions.
The grand salon as photographed
by Derry Moore. appearing in the
May, 1987, Architectural Digest.
Both the location of the entrance stairs and the fireplace varied from the drawings in the version realized.  Thickly quilted slipcovers of cap form cover all the seating in the Derry Moore photo that appeared in the 1987 magazine. 


The grand salon as photographed
by Walter Russo for the 1993
Mongiardino mongraph
ROOMSCAPES
 
A paisley print fabric with the appearance of antique shawls covers all the seating in the grand salon as shown in the book ROOMSCAPES, THE DECORATIVE ARCHITECTURE OF RENZO MONGIARDINO published in 1993.
The small salon as photographed
by Derry Moore, appearing in
Architectural Digest, May, 1987.
"The small salon was draped with bold striped silks to create a military tent," Mongiardino explained in the article.  A window effect is expressed by an 1886 panoramic painting of Jerusalem.

The hall as photographed
by Derry Moore, appearing in
Architectural Digest, May, 1987.
Entrance to the grand salon is made from a hall with the openings glazed in mirror.  The lower walls are covered in 19th century Chinese Export silk and the upper walls are stencilled in an intricate Orientalist pattern.  The wall lights, designed by Mongiardino, have a marbleized finish.

The dining room as photographed
by Derry Moore, appearing in
Architectural Digest, May, 1987.
The wall covering in the dining room is hung rather than fixed as upholstery.  Rich green velvet is embroidered and appliqued with gold, hanging tapestry-like from a marbleized cornice.  An 18th century marble chimneypiece with pietre dure insets gives an architectural presence while 18th century famille rose porcelain and a fanciful Venetian glass chandelier provide additional color.  Exotic whimsy is provided by a set of gilded wicker chairs.

The sitting room
as photographed by Derry Moore, appearing in
Architectural Digest, May 1987.
The focus of the sitting room is a gilt-bronze chimneypiece designed by Mongiardino, flanked by a pair of English chairs, circa 1685.  The painting is "An Intercepted Correspondence, Cairo" by J.F. Lewis.  Bookcases are painted with a red tortoiseshell finish against upholstered walls of silk velvet with appliqued paisley motifs.
A tempietto in the garden.
Photo by Derry Moore appearing in
Architectural Digest, May 1987.
Born Leirjal Firyal Irshaid in Jerusalem in 1945, she was married to Prince Muhammad bin Talal, the younger brother of the late King Hussein of Jordan, from 1964 to 1978 with the marriage ending in divorce.  Keeping the title of Princess Firyal, she became the companion of the billionaire Greek shipping magnate Stavros Niarchos from the late 1970s until his death in 1996.  In a 2009 dispute with the sons of her companion Lionel Pincus (now deceased) involving the combined apartments they shared in the Pierre Hotel in Manhattan, it was alleged that there was a history of her having rich boyfriends paying for her lavishly decorated residences.  Not only did Niarchos pay for the London house, it was reported, but also her apartment in Paris, decorated by Geoffrey Bennison (see the post on The Blue Remembered Hills blog).  In addition to serving on the Board of Directors of various cultural organizations, Princess Firyal serves as Jordan's Minister Plenipotentiary to the United States, a diplomatic envoy appointment she received in 2007.
Princess Firyal
at the 2008 Rock and Roll
Hall of Fame Induction.
Image:  contactmusic.com
 
MONGIARDINO a new book by Laure Verchere
Devoted Readers will be interested to know that a new book about Renzo Mongiardino by Laure Verchere titled MONGIARDINO has just been released by the art & lifestyle publisher Assouline.  It may be purchased at a substantial discount from the published price here.

Mark Hampton at Home in Southampton

$
0
0
Mark Hampton on the awning-covered terrace
of his Southampton, Long Island home.
Photo by Durston Saylor for Architectural Digest.
The recent post about Lakeview House, Palm Beach mentioned that one of the former owners, Madame Balsan (Consuelo Vanderbilt) spent summers in Southampton, a village settled in 1640 on Long Island.  Her estate Gardenside (also known as Cara Mia) on Ox Pasture Road featured a circa 1900 shingled house and several outbuildings.  After Madame Balsan's death in 1964, the property was subdivided.
The main house of the estate Gardenside in Southampton.
LONG ISLAND'S PROMINENT FAMILIES
IN THE TOWN OF SOUTHAMPTON,
THEIR ESTATES, AND THEIR COUNTRY HOMES.
 
Although virtually all the estates have been subdivided, the streets west of Lake Agawan are still known as the Estate Area and a desirable place to own property.  (Since 9/11, the full-time population of the Hamptons has grown, especially for families with children).
An aerial view of part of Southampton,
with Lake Agawan in the center
and the Atlantic Ocean at the bottom right.
The red pin marks the main house of Gardenside
and the purple pin marks the former gardener's cottage.
Image:  Google Maps via MapQuest.
The year-around weekend get-away house that the interior designer Mark Hampton created for his own family started out as the estate gardener's cottage at Gardenside.  Hampton added a complimentary garden of his own after he tripled the size of the house and created an interior in his own distinctive style.  (In numerous interviews, he always insisted he did not have a signature style, but his interiors are unmistakably a reflection of his preferences).
A closer aerial view of the Gardenside estate
with the red pin indicating the original main house
and the purple pin the cottage expanded by Mark Hampton.
Image:  Google Maps via MapQuest.
Along with Mario Buatta and Albert Hadley, Mark Hampton was one of the best known 'name' decorators of the early 1990s.  At the time of the article written by Aileen 'Suzy' Mehle for the September, 1996, issue of Architectural Digest, Mark was riding high with international fame as decorator-of-choice to the rich and influential, not the least being Bush 41.  Mark decorated the Vice-President's residence at the Naval Observatory, their house in Houston, the Kennebunkport compound and Camp David in addition to the White House for Barbara and President George H.W. Bush.
The Mark Hampton Residence in Southampton
as it appeared in the September, 1996, issue of
Architectural Digest.  Photo by Durston Saylor.
In the article, Mark said, "Most of the things in the house Duane [his wife] and I bought over the years of travel long before we had the place."   The Hamptons bought the property around 1980.  Facing the entrance elevation (above), the original cottage is to the right and the addition to the left.

"The design is based on old-fashioned
cottage architecture," Mark Hampton
said of his Southampton home.
Photo by Durston Saylor for Architectural Digest.
The entrance stair hall, in the new part of the house, is always bright with a skylight and spotted chocolate carpet with a strawberry motif.  Part of the collection of framed antique architectural renderings decorate the walls.  "Our interest in architectural models, engravings and drawings had an immense effect on how the final collection of odds and ends turned out."


Dark brown walls give a sense of architecture
to the living room in the addition to the cottage.
Photo by Durston Saylor for Architectural Digest.
In the living room, the new bookcase cabinet along with antique pieces are prototypes of models that later were manufactured for the Mark Hampton line of furniture for Hickory Chair.

The living room opens to a terrace
covered by canvas in the summer.
Photo by Durston Saylor for Architectural Digest.
The white slipcovers in the living room are removed in the winter to return the upholstered chairs and sofas to chintz.  The sisal rugs remain year around.

Plates from VITRUVIUS BRITANNICUS flank
the Georgian Revival chimneypiece.
Photo by Durston Saylor for Architectural Digest.
"And although we needed a palette that would be peaceful and cool in the summer, it had to be cozy during the winter weekends, when we have fires burning all day long."

"A cream room with blue-and-white ceramics
is a classic recipe," said Mark Hampton
in describing his dining room in Southampton.
Photo by Durston Saylor for Architectural Digest.
In the Dining Room, a round table can seat up to eight, and a second table can be added to seat eight more.  The walls are painted with trompe l'oeil panelling and decorated with blue & white early 19th century Staffordshire platters and plates.

The walls of the master bedroom
are a pale lettuce green to compliment
the Colefax & Fowler chintz.
Photo by Durston Saylor for Architectural Digest.
"The master bedroom is a kind of melange of pieces we're both crazy about -- French chairs, English chairs, a Gothic bookcase, and antique Gothic stove, a painted George III bed and a walnut desk from Indiana that I've sat at for forty-five years, writing and drawing since I was a child. . .The bed is always dressed entirely in white except for the antique American quilt we pull over ourselves in the winter."
The garden designed with landscape architect
Bruce Kelly.  Mark Hampton designed the bench
with the tall slat back.
Photo by Durston Saylor for Architectural Digest.
"When we were remodeling and adding on to the cottage," Mark is quoted in the article, "we had the good fortune of working with the late Bruce Kelly, a landscape architect who helped us create the English-style perennial garden.  It cheered us up to have beautiful old fruit trees and herbaceous beds bordered by box hedges when we had to tear down a glorious greenhouse on the property to make room for the swimming pool."
The house from the approach.
The garage, right, was converted to become the poolhouse.
Photo by Durston Saylor for Architectural Digest.
At both of the architectural firms this writer worked for prior to his tenure at Parish-Hadley, there was an association with landscape architect Bruce Kelly;  we worked on a couple of projects together that were never realized.  Bruce was best known for the design of the tribute to John Lennon, Strawberry Fields in Central Park.  Bruce died of AIDS in January, 1993, at age 44.

From
The Devoted Classicist Library
Mark Hampton died in July, 1998, at age 58.  Duane, who had been involved in the marketing and promotional aspect of the business, wrote a beautifully produced book titled MARK HAMPTON: AN AMERICAN DECORATOR that documents a wide survey of her late husband's work; she sometimes lectures on the subject.  Daughter Alexa had been groomed to take over Mark Hampton LLC  and became president and head designer after her father's death;  she has achieved success in her own name and also has a book ALEXA HAMPTON: THE LANGUAGE OF INTERIOR DESIGN.  Also following in her father's footsteps (Mark had studied theatre in college), daughter Kate is the actress Kate Hampton.



Never Plain Jayne

$
0
0
The cottage is seen from the added porch
of the main house as furnished by Thomas Jayne.
Photo by Pieter Estershohn.
Decorator Thomas Jayne approached a project for a young couple with an 18th century house and adjacent 1920s cottage in Garrison, New York, like conserving a painting rather than restoring it.  Thomas saw the solution more in terms of "pulling together" rather than decorating as most would think of the term.

The interior of the one room cottage
with Morris chairs from Sarah Latham Kearns.
Photo by Pieter Estersohn.
 
"Every room has its own character, but we avoided the red room/blue room syndrome," Thomas was quoted in an article written by Suzanne Slesin that appeared in the June, 1997, issue of House & Garden magazine (when it was edited by Dominique Browning).


The living room.
Photo by Pieter Estersohn.
In the living room, the Clarence House 'Tree Peonies' linen fabric used for the Roman shades and accent cushions provided the color palette for the whole house.  "If something didn't look good with the fabric, it just didn't get into the house."

The dining room.
Photo by Pieter Estersohn.
Delft tiles were added to the facing of the fireplace in the dining room which is always candle-lit.  A set of 19th century Windsor chairs surround the table on a seagrass rug.


The flower room.
Photo by Pieter Estersohn.
All the flowers in the shots, it must be noted, are 'lady of the house' arrangements, as they are when the house is not being professionally photographed.  (The issue of flower arrangements created for photo shoots is a subject for a whole essay in the future for The Devoted Classicist).

The master bedroom.
Photo by Pieter Estersohn.


A bathroom.
Photo by Pieter Estersohn.


A view into the sleeping porch.
Photo by Pieter Estershohn.
The whole range of Thomas Jayne's decorating talent is presented in the monograph of his work, AMERICAN DECORATION: A SENSE OF PLACE.  (See a previous post of The Devoted Classicist about the book here).  In celebration of the book's critical and popular success, one of Thomas' biggest fans, Stephanie Jones of the blog me & mrs jones, is hosting a book-signing reception at her delightful shop/studio in Memphis this Saturday afternoon, March 30, 2013, between the hours of 4 to 6.  All are invited to stop by and meet Thomas.




A General Note About Comments
The Devoted Classicist usually reads the posts of fellow Bloggers on his mobile phone and finds the verification process particularly troublesome, sometimes requiring two (or more) tries to duplicate the security code.  Since the comments are moderated, this process has been eliminated for those wanting to comment on this site in an effort to streamline the process of creating an informative and friendly conversation.  While those who leave a comment are a tiny fraction of the total who read The Devoted Classicist, the comments are a very welcome part of the whole process of Blogging.  The security software of Blogger prevents adding a link in the comments so that another reader cannot inadvertingly click on a site that will contain spyware or other dangerous viruses, but that does not stop Spammers from trying.  Efforts to promote these links have grown to more than twenty a day, and contain comments, for the most part, that make no sense at all, much less be pertinent to the subject of the essay.  Although there is a standard option given to submit Anonymous comments, it is the policy of The Devoted Classicist to prohibit these comments from being published;  it just adds to confusion for those who enjoy reading the comments (which can sometime be very, very interesting indeed).  So the security verification process will remain unactivated for the time being, but remember to choose an identity other than Anonymous.  And understand that comments with pleas such as "be sure to check out my site for my shop of underwater basketweaving" cannot be published.


Michael Taylor for Nan Kempner

$
0
0
The Manhattan living room of
Nan and Thomas Kempner
as it appeared in the mid 1980s.
Photo by Derry Moore for Architectural Digest.
California interior designer Michael Taylor, born Earnest Charles Taylor in 1927 and died in 1986, is remembered for his West Coast aesthetic using raw wood, boulders or split stone and nubby neutral fabrics.  But he first became well-known for his fresh, new interpetations of traditional European-influenced schemes that had been popularized by the likes of Syrie Maugham , Sister Parish, and Stephane Boudin of Maison Jansen.



Another view of the Kempner living room.
Photo by Derry Moore for Architectural Digest.
Nan and Thomas Kempner bought their Park Avenue, New York City, duplex apartment in 1956.  The story goes, as related in an article by Brooke Hayward in the May, 1987 issue of Architectural Digest, that Nan, having a troubled pregnancy and sent to relax in Palm Springs, ran into Michael Taylor the first day at the pool.  (Taylor had added to the decor begun by Frances Elkins for her parent's sophisticated house in San Francisco).  Sending for the floor plans, they worked out most of the decoration on paper in Taylor's San Francisco office.

The Banquette Room designed by Stephane Boudin
for the Duke and Duchess of Windsor's home
at 24 boulevard Suchet, Paris.
Watercolor by Alexandre Serebriakoff, 1946.
 
'Comfort First' was the mandate, with Taylor designing deep. oversize seating by laying out the outlines on the floor with string and having them custom made;  they were so big they had to be hoisted through the window rather than brought up in the service elevator.  Inspired by banquettes designed by Stephane Boudin of Maison Jansen for the Duchess of Windsor, the seating for the Kempners was covered in a fabric unusual for upholstery at the time, chamois-colored narrow-wale cotton corduroy.  A twelve-panel coromandel screen bought at a good price provides a rich contrast along with other bargain finds:  two Queen Anne mirrors, a pair of chests on stands, and a large Aubusson rug.  (The rug in the photo is a replacement due to wear).  The chimneypiece and over-mantle mirror were provided in the early 1970s by antiques dealer Norton Rosenbaum.

The Kempner dining room.
Photo by Derry Moore for Architectural Digest.
The dining room features handpainted eighteenth-century Chinese silk panels that had come from the house of a family friend in San Francisco.  Porcelain birds of Meissen or Chinese Export from her mother's collection are displayed on simple block brackets almost filling the walls not covered with fabric.  An 18th century French needlepoint rug covers the floor.  There are no curtains at the apartment windows, only shutters or shades.

The Kempner library.
Photo by Derry Moore for Architectural Digest.
In the library, the walls are covered with 95 coats of glaze to approximate Ming red lacquer, the process supervised by Michael Taylor until the desired effect was achieved.

The guest room of the Kempner apartment.
Photo by Derry Moore for Architectural Digest.
In the guest room, Chinese wallpaper taken from Nan's mother's house provides an elegant backdrop for the twin beds that Taylor had made for the room.

Nan Kempner in the master bedroom
decorated by Michael Taylor.
Photo by Derry Moore for Architectural Digest.
The room to gain the most public attention, however, is Nan's dressing room/closet created from a bedroom.  Designed by Chessie Reyner of Mac II, shirred curtains of a floral cotton fabric conceal the clothing.  While the room is not a favorite of this writer, it may be viewed here on a post of the always interesting blog, Little Augury.  Nan Kempner remained in the apartment until her death in 2005.  More about the celebrated decorator may be found in the book by Stephen M. Salny MICHAEL TAYLOR: INTERIOR DESIGN.

Designers' Favorite Things

$
0
0
Juan Pablo Molyneux
Photo by John Lei.
"Selecting The One Object They Could Not Live Without" is the subtitle of the article in the September, 1996, issue of Architectural Digest.  Whether it was truly the most appreciated possession, or one that was chosen for image value, that will be left up to you, Devoted Reader.


The silver tape measure engraved JBK
bought at the April, 1996, auction by
NYC interior designer Juan Pablo Molyneux.
Photo:  People Magazine.
Juan Pablo Molyneux is pictured with a pair of Anglo-Afghan campaign chairs that he had owned for over a decade.  He restored the inlaid mother-of-pearl marquetry, disabled the collapsible feature to make them more stable, and covered the seats in zebra silk velvet, vowing never to sell them.  In the first image, he's holding the silver Tiffany's tape measure he famously bought in the April, 1996, Jacqueline Kennedy auction.  Engraved with her initials, he paid $48,250 for the souvenir.  "I like to think she was measuring the White House with it," said Molyneux.

Mario Buatta.
Photo by Feliciano.
Mario Buatta is shown with a few creamware plates.  "It's difficult to pick out one, because the whole set of botanical plates is my favorite," Buatta is quoted in the article.  At the time, he had about one hundred dishes made between 1790 and 1870 with decoration based on botanical drawings, collected over 30 years.  Fans of the decorator will recognize the same designs, painted on cushions, that often serve as accessories in his interiors.

Robert Denning.
Photo by Scott Frances.
Robert Denning, who died in 2005, relates that the first thing that he and his late partner Vincent Fourcade, who died in 1992, bought together was a 19th century Copeland Spode monkey.  "It cost fifteen dollars, but there was a decorator discount of two dollars," he said.  Denning added the bronze feet to the base.

Bruce Gregga.
Photo by Russell Ingram.
Bruce Gregga is pictured with a 19th century Rococo-style clock supported by an enamel elephant and topped with an enameled Chinese man sitting on a gilt, lacquer and enamel seat.  He had admired a similar clock in France 6 or 8 years before happening to find this clock in a New York store.  He says that the clock has moved around to several locations in his Chicago residence before occupying the perfect spot "on a console in the living room with a Botero painting hanging above it and delft vases set on either side, so it fits in with the kind of things that I like."

Clodagh.
Photo by Daniel Aubry.
Clodagh, the Irish-born designer who goes by her first name only, often incorporates Feng Shui and Chromotheraphy in her international projects.  She first saw the Buddha in 1971 in the apartment of photographer Daniel Aubry who would later become her husband.  An 18th century Kmer statue, Aubry's aunt had given it to him from her husband's collection of Asian antiques.  "I'm not covetous of things.  Everything in our house could go.  But this statue, not any other Buddha, is the spirit of our house," Clodagh said of the statue that had traveled to nine different residences with the couple up to that date.

William 'Bill' Hodgins.
Photo by Richard Mandelkorn.
William Hodgins found the 19th century cast-iron statue of Hercules in the early 1990s in the beloved London garden centre, Clifton Little Venice.  Placed on a fluted, marbleized truncated column pedestal in his Boston living room, Hodgins says, "He's kind of wonderful.  I'll always like this one."

Juan Montoya.
Photo by Feliciano.
Juan Montoya's grandfather bought the alabaster urn, thought to be 300 years old, in the 1870s in Florence, Italy, and had it shipped back home to Columbia.  It occupied a prominent spot in his parents' small chapel and Montoya had admired it since he was a child.  When he changed the décor of his apartment in the mid 1980s, he had it shipped to New York.  "It is the texture, the feeling, the element itself that makes me happy.  I would never be able to live without it," he says in the feature.  "But someday it may go back to Bogota, to my sister."

Devoted Reader, do you have a possession (a non-living thing, of course) you would be particularly sad to lose?

Duncan Phyfe Comes To Memphis

$
0
0
A very fine pair of Federal period,
carved mahogany side chairs,
attributed to Duncan Phyfe, circa 1815.
Lot 509, Sale NO8959, Sotheby's New York.
Not Mr. Phyfe, himself -- the remarkably successful New York furniture maker died in 1854.  But rather, it is a handsome pair of chairs, attributed to Duncan Phyfe, that has been bought at auction by Decorative Arts Trust and presented as a gift to Memphis Brooks Museum of Art.  Despite his fame, pieces from Phyfe's shop seldom bore a signature, stamp or label.  Therefore items without documentation such as a receipt or other written accounts are referred to as "attributed to" instead of "made by" Duncan Phyfe. 

Duncan Phyfe.
Wikipedia.
Born Duncan Fife in Scotland in 1770, at age 14 (or 16 as some sources say) he emigrated with his family to Albany, New York, and found work as a cabinetmaker's apprentice.  After moving to New York City and finding success as a joiner in the furniture trade, he changed the spelling of his name to a more classical appearance when he opened his own business in 1794. 

Shop and Warehouses of Duncan Phyfe.
Watercolor, Unknown Artist, 1816 to 1820.
Collection of the Metropolitan Museum of Art.
Duncan Phyfe was not a furniture designer, but he greatly popularized the neo-classical style and became known as "The United States Rage."  Furniture from the shop of Duncan Phyfe was found in the homes of the rich and famous of New York, Philadelphia, and the South, with his reputation for high-quality creating a great demand for neo-classical furniture, peaking between 1805 and 1820.

FURNITURE MASTERPIECES OF DUNCAN PHYFE
by Charles Over Cornelius, 1922.
Duncan Phyfe furniture is characterized by the use of classical motifs such as cornucopias, swags & tassels, sheaves of wheat or palms tied with a ribbon, and oak leaf branches with acorns to decorate the back rails of chairs and sofas. A cross, either straight or in ogee form (such as the examples in the first image), or a double cross might used for chairs and settees.   Notably as an alternate, a lyre or harp might be used as the back splat of a chair.
Sketch attributed to Duncan Phyfe.
Collection of Winterthur Museum, Garden and Library
On the sketch of the two chairs shown above, the prices are noted as follows:
Above the lyre-back chair:                 
  Cane bottoms   $22
  Cushions              3
  Stuffed              23
Above the Grecian curule-front chair: 
  Cane bottoms   $19
  Cushions Extra     3
  Stuffed bottoms 21
There are records of orders for two dozen chairs for dining rooms, so it is easy to see that this would be an expensive proposition for the time.

Side chair with a lyre back splat,
attributed to Duncan Phyfe, 1815 to 1820.
Metropolitan Museum of Art.




Side chair with curule legs,
attributed to the workshop of Duncan Phyfe
circa 1810.
Metropolitan Museum of Art.
While curule legs are sometimes found on stools, they are unusual for other forms of seating in American furniture.  But Phyfe was committed to classicism and had access to pattern books and catalogs of the period.  Plain Grecian forms based on French Restauration models created furniture with a fresh, bold classical appearance.

Plate 6
New York Cabinetmaker's Book
1817.
Collection of the Metropolitan Museum of Art.
The Decorative Arts Trust chairs bear similarities with two, in particular, in the collection of the Metropolitan Museum of Art.  The hairy legs and paw feet, very desirable features, can be seen on the chair with the lyre back;  coincidently, the same green fabric covers the seat of both chairs.  However, the seat may have originally been caned as seen on the chair with curule legs;  both have the single ogee cross back.

Last year, an exhibit at the Metropolitan Museum of Art produced a handsome comprehensive catalog that covers the full chronology of Duncan Phyfe's career.  Three short videos can be seen on the exhibition webpage.

The chairs purchased by Decorative Arts Trust had an interesting provenance, having been owned by noted collectors Mr. and Mrs. Peter Terian, and before that, the curatorial master of American decorative arts, Berry B. Tracy.

The Manhattan Dining Room of Mr. & Mrs. Peter Terian.
Photo:  www.elliman.com
After Peter Terian's death in 2002, the widow of the French-born co-founder of Rallye Motors, a luxury car dealership, wanted to down-size and put their homes on the market.  There was a compound of several combined properties in East Hampton with the main house formerly owned by Chevy Chase.  And an apartment at The Dakota that had been formerly owned by Leonard Bernstein.  Judging from the interiors shown in the real estate listings, these chairs probably came from the Manhattan apartment.

Floor plan of apartment unit 23,
The Dakota,
1 West 72nd Street, New York.
www.elliman.com
Berry B. Tracy, the head curator and driving force behind the 1974 to 1980 renovation of the American Wing of the Metropolitan Museum, was a well-respected authority on American neo-classicism and period interiors.

The re-created parlor of the William C. Williams house,
from Richmond, Virginia, now in the
Metropolitan Museum of Art, New York.
Tracy, who died in 1984, was also largely responsible for the current presentation of the house museum, Boscobel, a reconstruction in Garrison, New York.  The furnishing schemes are representative of Berry's academic and decorative taste in historic re-creations.  The pair of Decorative Arts Trust chairs were formerly in Tracy's own home in Goshen, New York, and once part of a larger set.

Fragments of the historic house Boscobel before reconstruction.
www.boscobel.org/
Interestingly, blogger Reggie Darling highlighted the chairs in his post about the Sotheby's auction preview during Antiques Week.  It was classic Good News/Bad News, being glad he was so taken with the chairs but uneasy about drawing attention to them.  Estimated by Sotheby's at $5,000 to $10,000, they sold for a total $12,500, hammer price plus 25% buyer's premium.  The chairs have been admitted to the permanent collection of Memphis Brooks Museum of Art and have been exhibited in a showing of recent contributions to the museum by Decorative Arts Trust.

New Orleans Lady

$
0
0

Julia Reed
on the porch of her First Street house
in New Orleans, Louisiana.
Photo:  online.wsj.com
Julia Reed, one of the South's most celebrated contemporary writers, bought a circa 1847 Greek Revival house in New Orleans' Garden District with her husband John Pearce in 2004, a year before Hurricane Katrina.  The experience is chronicled in her popular book THE HOUSE ON FIRST STREET: MY NEW ORLEANS STORY.

Julia Reed's house is considered one of New Orleans' most beautiful and hospitable homes.  Decorated with assistance from Thomas Jayne, decorator friends Suzanne Rheinstein and Patrick Dunne also gave advice.  In an article written by Julia Reed for Elle Décor magazine, she says Thomas referred to the team as the "Committee on Taste."  The house is also featured in Thomas' acclaimed book AMERICAN DECORATION: A SENSE OF PLACE.

1236 First Street, New Orleans.
Photo:  Jayne Design Studio
The Entrance Hall of Julia Reed's house
looking back towards the front door.
Thomas Jayne advocated a neutral decorating
scheme to compliment the adjacent parlors.
Photo:  Jayne Design Studio

The Front Parlor contains the pair of
faux bamboo settees purchased before the
house was bought in 2004.
Photo:  Jayne Design Studio
Looking from the Front Parlor to the Back Parlor.
The bold door and window trim is typical of the
Greek Revival period.
Photo:  Jayne Design Studio
The Back Parlor is also used as a Music Room.
The gilt catfish on the piano was salvaged
from a Mardi Gras float.
Thomas Jayne suggested the Claremont yellow
silk for the curtains and the chintz from Le Manach.
Photo:  Jayne Design Studio
The Dining Room contains a sofa from the home
of Julia Reed's grandmother in Nashville.
Photo:  Jayne Design Studio
The Pantry is painted in Ball Green
paint from Farrow & Ball.
Photo by William Waldron for Elle Décor
The Kitchen contains a range for serious cooking.
Julia Reed wrote the food column for the
"New York Times" magazine for several years.
Photo by William Waldron for Elle Décor
A Guest Bathroom is decorated with 19th century
prints of Napoleon and Pope Pius VII.
Photo by William Waldron for Elle Décor.
The Master Bedroom features an
Aubusson rug on top of sisal.
Photo by William Waldron for Elle Décor
The Library was added in the 20th century.
The stained paneling was painted to resemble pine
 by Julia Reed's childhood friend, Anne McGee.
Photo:  Jayne Design Studio
 
The Sunroom features Bennison Crewelwork fabric.
Photo by William Waldron for Elle Décor.
Homeowner Julia Reed in the Sunroom
of her house on First Street.
Photo by William Waldron for Elle Décor
Now the house is being offered for sale.  Additional photos may be seen on the real estate website.  Reports are that Julia and her husband are looking at the French Quarter as possibly their next home.
Julia Reed's collection of essays about other experiences can be read in her best-selling book QUEEN OF THE TURTLE DERBY AND OTHER SOUTHERN PHENOMENA.  Additional stories as well as practical advice such as how to cook for compliments are found in HAM BISCUITS, HOSTESS GOWNS, AND OTHER SOUTHERN SPECIALTIES: AN ENTERTAINING LIFE (WITH RECIPES).  Julia Reed is famous as a hostess and some of her best advice will be given in her new book to be released at the end of the month, BUT MAMA ALWAYS PUT VODKA IN HER SANGRIA!: ADVENTURES IN EATING, DRINKING, AND MAKING MERRY.
Devoted Readers in the Chicago area will want to attend a style blogger panel discussion on April 20, 2013, as part of the Antiques & Garden Fair benefiting Chicago Botanic Garden.  Jennifer Boles of The Peak of Chic, Emily Evans Eerdmans of Emily Evans Eerdmans, and Marisa Marcantonio of STYLEBEAT will comprise the panel with the moderator being no other than the always delightful Julia Reed.

Pilgrimage to Holly Springs

$
0
0
Walter Place, Holly Springs, Mississippi.
Spires Boling, architect.
Photo by John J. Tackett, The Devoted Classicist blog.
Just down the road, about 45 miles from downtown Memphis, there is a town that The Devoted Classicist has known all his life;  it is on the way to his maternal grandparents' home.  In its heyday prior to the War Between The States and changed relatively little since, the little town is full of antebellum homes, ranging from modest to grand.  Named for the natural springs that ran through the hills covered with holly trees, the town is Holly Springs, Mississippi.

The Courthouse Square
Holly Springs, Mississippi
Image via the Marshall County Website.
As a result of the Indian Removal Act of 1830, the Chickasaw ceded their land east of the Mississippi River to the U.S. Government in 1832 and were relocated to Indian Territory (now Oklahoma).  The town of Holly Springs was founded in 1836 and was made County Seat the next year for the newly created Marshall County, named for the fourth Chief Justice of the United States, John Marshall.  The surrounding cotton plantations supported the town as a center for law and trading which was booming by 1855 after being connected to the Memphis and Charleston Railroad, the first link between the Atlantic Ocean and the Mississippi River.


Walter Place. Holly Springs, MS
Photo by Jack Boucher. 1975.
Historic American Building Survey

During the Civil War, Yankee General Ulysses S. Grant used the town as headquarters and supply depot for the campaign to capture control of Vicksburg.  Grant's wife Julia joined her husband, first in Memphis in 1862 and then in Holly Springs when he established a degree of permanence.  Julia Grant occupied the grandest house in town, Walter Place, whose owner was away fighting for the Confederacy.  But at the time of the raid on the depot led by General Van Doren, a party was also sent to capture the general's wife at Walter Place, and it was discovered that Julia Grant and her slave, whom she called Black Julia, happened to be on a visit to nearby Oxford, Mississippi. 

Airliewood
Rust-At-Airliewood
Photo:  rustcollege.edu
After another period again in Memphis, the Grants returned to Holly Springs, this time living in a Gothic villa built to plans by Philadelphia architect Samuel Sloan.  Built as the in-town home for Will Henry Coxe who owned Galena Plantation, the house is known as Airliewood.  Now on 15 acres, the house had been extensively restored and added-to by the owners who reported had invested almost $5 million in the property.  Put up at auction with a minimum bid of $750,000, there were no takers.  More about the house in 2010 can be seen on The Architecturalist blog.  Although not part of the 2013 Pilgrimage, Airliewood is now owned by Rust College and is used for functions as well as open for tours.

The magnificent cast iron gates and fence
still survive at Airliewood..
Photo by Jack Boucher, 1975.
Historic American Building Survey
Walter Place was not part of the 2013 Pilgrimage, but it is open for tours as well.  The last private owners, Jorja and Michael Lynn, general manager for the Minnesota Vikings NFL football team, had seen an ad in 1983 with the house for sale.  Jorja Lynn was a native of Holly Springs and had always loved the house, so they bought it as a second home and moved there full time after Michael's retirement in 1992.  They found drawings by Theodore Link dated 1903 for a design for a 40 acre garden and used them as a basis for their landscaping.  Their tries at selling the estate, which also includes two 1830s houses, started at $15 million and dwindled to $5 million, still with no takers.  It is now maintained by the town as a civic attraction.

Oakleigh, now known as Athenia.
Holly Springs, Mississippi, built 1858.
Photo:  Library of Congress.
The house known as Oakleigh, the West Home, and now, Athenia, is near Airliewood and across the street from Montrose. 

Oakleigh, now known as Athenia,
as it appeared April, 2013.
Photo by John J. Tackett, The Devoted Classicist blog.
Built in 1858, legend has it that the owner, Judge J.W. Clapp once escaped from a Yankee search by hiding in the column to the far left (west) when facing the house;  it is hollow and has access from the cellar. A private home, it was not on the pilgrimage tour this year.


Imokalea, Holly Springs,
as it appeared April, 2013.
Photo by John J. Tackett, The Devoted Classicist blog.

Across the street from Walter Place is a raised, brick cottage known as Imokalea which means "Happy Place".  Built in 1840 (or 1844 according to some sources), the walls are 27 inches thick, and it is believed to be the second oldest brick structure still standing in Holly Springs.  The first owner was Mr. Knapp, a silversmith.  A private residence, it was not on the pilgrimage tour this year.  Located at 275 W Chulahoma Avenue, Holly Springs, it is currently listed for sale at $249,900.

Illinois Central Railroad Depot & Hotel
as it appeared April, 2013.
Photo collage by John J. Tackett, The Devoted Classicist blog.
The original depot was badly damaged by the famous Van Dorn raid during the Civil War, but the ruins were incorporated into the present building dating from 1870.  It is now a private residence and was not on the primary pilgrimage tour.  Across the street and seen to the left in the photo above is the Phillips Grocery, formerly a bar and brothel.  Now it is famous for its food with USA Today exclaiming, "One of the world's greatest burgers!"  They are good, this writer can verify, as are the homemade onion rings, made from sweet Vidalia onions.

Church of the Yellow Fever Martyrs Museum
as it appeared April, 2013.
Photo by John J. Tackett, The Devoted Classicist blog.
Built as an Episcopal Church in 1841 but sold to the Catholics in 1858, it served as a make-shift hospital with the priest, Father Oberti, and the nuns caring for victims of the Yellow Fever Epidemic until they died of the fever themselves.  It was dissembled by hand and rebuilt at this location at 305 East College Avenue to be open to the public as a museum.

The Carriage of Pilgrimage Royalty,
with Percheron  draft horses waiting on East College Avenue,
April, 2013.
Photo by John J. Tackett, The Devoted Classicist blog.
Although the titles "Queen" and "King" are notably avoided, each year there is 'Pilgrimage Royalty' that appear to be of high school senior age and having a family association with the Holly Springs Garden Club, sponsors of the tour festivities.

Holly Springs Pilgrimage Royalty
Wesleyann Gardner Ray, center,
and Joshua Perry Mask, right,
calling at Walthall Place, April, 2013.
Photo by John J. Tackett, The Devoted Classicist blog.
Walthall Place, 1848,
Holly Springs, Mississippi,
as it appeared April, 2013.
Photo by John J. Tackett, The Devoted Classicist blog.
One of Holly Springs' best known citizens is the artist Miss Kate Freeman Clark whose family built Walthall Place in 1848.  After studying under William Merit Chase in New York, Miss Clark returned in 1923 to this house, adding a studio (now removed) which was seldom used if at all.  After her death, more than 1,000 of her paintings were brought from a New York warehouse and installed in a gallery built adjacent with funds provided in her will.  The house is owned by the Kate Freeman Clark Trust and currently occupied by the grand-daughter of the original trust's administrator.  A private residence, it was open for the 2013 pilgrimage.  The gallery was the site of a luncheon during the primary tour but open to visitors afterwards.


Montrose, 1858,
Holly Springs, Mississippi,
as it appeared April, 2013.
Photo by John J. Tackett, The Devoted Classicist blog.
Montrose is a grand house built of handmade bricks in 1858 by Alfred Brooks as a gift to his daughter Margaret on the occasion of her marriage to Robert McGowan.  Sadly, she died after the birth of her fifth child and there were several owners until a widow, Mrs. Minnie Wooten Johnson bought it in 1938.  Employing Memphis architect Everett Wood (well known in his own right in addition to being the step-brother of nationally-known architect Neander Montgomery Wood), relatively sensitive additions were attached to each side of the original block to provide service areas.

Montrose, 1858 plus circa 1938 additions.
The six windows on the right, upstairs and down,
are in the added service rooms.
Photo by Jack Boucher, 1975,
Historic American Building Survey.
On the death of Mrs. Johnson, the house and its contents which included some original pieces that had been returned were given to the Holly Springs Garden Club as their headquarters.  The club is the sponsor of the annual pilgrimages.

Finley Place, 1859,
Holly Springs, Mississippi.
As it appeared April, 2013.
Photo by John J. Tackett, The Devoted Classicist blog.
Of a form typical of so many of the two story houses in the area, Finley Place varies from the norm with its staircase position reversed and starting mid-way in the central hall.  It was designed by architect Spires Boling for Mrs. Rufus Jones.  Later, it was the lifelong residence of Miss Ruth Finley, who, along with her sister Margaret Shackleford, bequeathed the house along with land holdings at Strawberry Plains to the National Audubon Society.  The director of the state headquarters uses Finley Place as his family residence, but it was open for pilgrimage tours.

The Magnolias, 1852,
Holly Springs, Mississippi,
as it appeared April, 2013.
Photo by John J. Tackett, The Devoted Classicist blog.
A nod to the Gothic Revival is seen in The Magnolias, built in 1852 by William F. Mason as a wedding present for his daughter Elizabeth.  Containing some original furnishings, the house has been owned by the present young family for about a year.  It was used as a primary filming location for the 1999 Robert Altman film "Cookie's Fortune".  The delightful house was open for the primary pilgrimage tour as well as the Back House Tour which featured the former slave quarters of various houses in town.

Hedge Farm, 1842,
Red Banks, Mississippi,
as it appeared April, 2013.
Photo by John J. Tackett, The Devoted Classicist blog.
Located near the community of Red Banks, Hedge Farm is a handsome example of a planter's cottage with a façade of flush boards and pilasters giving a sophisticated appearance.  Built in 1842, it is a typical four room plan with a central hall plus a transverse back hall attaching two side-by-side rooms.  Ceiling heights of fourteen feet with 11 foot tall doorways with 'dog ear' Greek Revival trim give distinction to the otherwise simple rooms.  Named for the hedgerows instead of fencing that surrounds the property, 175 of the original 2,000 acres remain with the house.  The current owner, bought the property from another family member and has sensitively renovated it after many years of vacancy.  An addition, painted green on the right in the photo above, houses dressing rooms and bathrooms for the two bedrooms plus provides an attractive L-shaped porch which serves as an outdoor living room.

The back porch of Hedge Farm, circa 2008,
as it appeared April, 2013.
Photo by John J. Tackett, The Devoted Classicist blog.
A new Guest House in the form of an outbuilding was built of old bricks and contains a handsome sitting room with fireplace in the main mass with the bedroom above plus a kitchenette and bathroom in the auxiliary attached shed.

The Guest House at Hedge Farm, circa 2008,
as it appeared April 2013.
Photo by John J. Tackett, The Devoted Classicist blog.
The garden at Hedge Farm is particularly attractive, with the design based on the creation of several outdoor rooms.

An outdoor Dining Room at Hedge Farm,
as it appeared April, 2013.
Photo by John J. Tackett, The Devoted Classicist blog.
There were also three historic churches on the primary pilgrimage tour, and there was a guided tour of Hillcrest Cemetery as a separate event.  In addition, there were luncheons, a 'true Southern supper' as "Montrose Under the Moonlight," and even a run as "Killer Kudzu 5K."  (Kudzu being an invasive vine that was planted as a Depression era work project to combat erosion).  For further information about the tour and to plan a future visit, see the website www.hollyspringspilgrimage.com.

Baguès

$
0
0
A design for a wall light
for Chanel, 1940.
Image:  1stDibs.
My friend and sometimes collaborator Hector Alexander recently snagged a drop-dead low table during the opening minutes of an estate sale that had been produced by the elite firm Maison Baguès.  Still in business and noted for its distinctive (and often copied) light fixtures, the atelier once also produced a line of accessory tables.

A bronze low table
with a lacquer top.
Image:  Elle Décor.
Either a palm frond or bamboo motif were popular leg forms for these tables.  Hector's low table in the form as shown above has a clear glass top, but the same model with the original smoky antique mirror top was offered in 2002 by Malmaison Antiques in NYC for $20,000.

A small tripod table
in the bamboo motif
with a marble top.
Image:  1stDibs.
Noël Baguès started a firm in Paris around 1860 that produced bronze candlesticks and other items used in Christian worship services.

An advertisement for Eugene Baguès.
Image:  eBay.
 
Eugene Baguès in his New York office.
Image:  Elle Décor.
His son Eugene introduced bronze light fixtures in 1880.  In turn, Eugene's sons Victor and Robert expanded the lighting collection in the 1920s and added gilded iron fixtures as well.  At one time, there were additional retail branches in New York, London, Brussels, Rome, and Cairo.

The Galleon chandelier
is one of the signature pieces of
Maison Baguès.
Although the company went under the control of bankers during The Great Depression, Victor's son Jean-Pierre was able to eventually buy back the company in 1957 and revived the collection and also made new introductions.
 

A sconce for seven candles in the popular
double parakeet form.  Also available
in a number of variations, this sconce
is the most copied by other makers.
Image:  Elle Décor.
When Jean-Pierre Baguès retired in 1995, his successor Mr. Souriou relocated the business to Viaduc des Arts in Paris, an area of fine metal-workers.  In 2007, a second location was added to make large chandeliers and other products.

An inventive model using the bamboo motif
in gilt and patinated bronze.
Image:  Elle Décor.
In 2011 Mr. Gesteau formed an association with the maker of decorative cabinet hardware Bronzes of France.  Some pages of a vintage Baguès catalog may be seen on the web site of Riad Kneife here, a reference for some of the dates and names associated with the firm.  The current catalog of Maison Baguès may be seen here. 

A mirror of eglomise glass
in a giltwood frame.
Image:  Elle Décor.
One of the best customers of Maison Baguès was the legendary decorating firm Maison Jansen.  Since Jansen furnishings are highly prized, vintage Baguès pieces on the market today are often advertised as "supplied by Jansen" or "Jansen Style".  Baguès items were seldom marked or labeled with the maker's name, which also leads to mis-identification.  Chic antique shops in New York City such as David Duncan Antiques, R. Louis Bofferding, and Malmaison Antiques often have Baguès light fixtures and occasional tables among their offerings.  And occasionally, the furnishings come up at Sotheby's and Christie's auctions.  Estate sales are generally less dependable as a source, but it helps to have a keen, educated eye like Hector.

Mr. Selfridge Had An Interest In Architecture

$
0
0
Actor Jeremy Piven as Harry Gordon Selfridge.
From the PBS television series "Masterpiece Classics".
Image:  list.co.uk
Fans of British period dramas are currently enjoying the PBS series Mr. Selfridge starring Jeremy Piven as the American-born retail pioneer.  Harry Gordon Selfridge, 1864 to 1947, worked his way up from stock boy to head the department store that became Marshall Field in Chicago.  When Field refused to make him a partner, he struck out on his own.

Harry Gordon Selfridge
as he appeared about 1910.
Image:  Wikipedia.
117 (now 1430) Lake Shore Drive, Chicago.
Photo via Glessner House blog.
The Selfridges had shared a house on Rush Street with her sister and brother-in-law until purchasing a city house on Lake Shore Drive for $100,000 in 1898.  It had been built in 1890 by architect Francis Whitehouse for his widowed mother-in-law.

Harrose Hall, Lake Geneva.
Completed 1899.  Now demolished.
Photo via Glessner House blog.
A summer home at Lake Geneva was completed in 1899.  Named Harrose Hall, combining the names of Harry and Rose, it was a substantial Arts & Crafts house of stone and half-timbered stucco.  More about the Selfridges' Chicago years may be found here.

Architect Louis H. Sullivan's store for Schlesinger & Meyer
was H.G. Selfridge & Co. before becoming
Carson, Pirie, Scott & Co.  It is now a Target store.
Image via intralld.com
With business partners, Selfridge bought the Chicago department store Schlesinger & Meyer and changed the name to H.G. Selfridge & Co.  The landmark building designed by Louis H. Sullivan was included in the deal.  However, within a year, it was all sold at a great profit to Carson, Pirie, Scott & Co.

Selfridge's Department Store
designed by architect Daniel Burnham.
Photo via RIBA.
The lure of London retail beckoned after a 1906 visit and a magnificent new Classical Revival store was opened in 1909 designed by Chicago architect Daniel Burnham.  The influence of the Beaux Arts ideals of the 1893 Chicago World's Exposition, largely designed by Burnham, is apparent in the store, and the matching expansion completed in 1929.  Several designs for a 450 ft tower were submitted by Burnham as well as British architects Sir John Burnet and Philip Tilden, but it was never built.

Highcliffe Castle, Dorset.
South Court as published in 1942.
Photo:  Country Life Library
London gentlemen of social standing had a country house for weekend entertaining, and Harry Gordon Selfridge leased Highcliffe Castle in Dorset from 1916 to 1922.  During World War I, Rose had a therapeutic charitable tent retreat on the grounds called the Mrs. Gordon Selfridge Convalescent Camp for American Soldiers.

Highcliffe Castle entrance.
Photo:  Country Life Library.
Constructed in the romantic Gothic Revival style mainly from 1831 to 1836 by architect William Donthorne, it was home to the diplomat Lord Stuart de Rothesay.

Highcliffe Castle Great Hall staircase.
Photo:  Country Life Library. 
Salvaged stone work and colored glass windows from across the channel in France were incorporated into the house, making it appear older than it actually was.

Highcliffe Castle Great Hall.
Photo:  Country Life Library.
In contrast with the exterior, the interiors past the Great Hall were largely finished in the French taste of the 18th and early 19th centuries.  Although the house was only leased by Mr. Selfridge, he installed central steam heat and a modern kitchen and bathrooms.

Highcliffe Castle, Salon.
As it appeared in 1942.
Photo:  Country Life Library.


Highcliffe Castle, Octagon Room.
As it appeared in 1942.
Photo:  Country Life Library.


Highcliffe Castle, Dining Room.
As it appeared in 1942.
Photo:  Country Life Library.
Highcliffe Castle, Library.
As it appeared in 1942.
Photo:  Country Life Library.
Although Highcliffe Castle holds Grade 1 status, the interiors were lost in two fires in the 1960s.  In 1977, it was purchased by Christchurch Borough Council and is used today as community space, tourist attraction and popular wedding venue.  A 1990s restoration was partly funded by a grant from the Heritage Lottery fund.


A proposal for the Selfridge Castle
at Hengistbury Head by Philip Tilden.
Image:  RIBA.
Selfridge thought big, of course, and Highcliffe Castle was only a temporary residence.  He bought a mile-long stretch of cliffs nearby and commissioned architect Philip Tilden, who had been involved in the competition of sorts for the tower above the store in London, to design 'the largest castle in the world.'  Despite Selfridge's preference for classicism, he wanted the castle to have a mix with the concept of a medieval fortress being the primary goal.  
A proposed terrace for the Selfridge Castle
at Hengistbury Head by Philip Tilden.
Image:  RIBA
Within four miles of ramparts with towers, there was to be a Gothic hall, a 300 ft tower, a theatre, a Hall of Mirrors copied from Versailles, a winter garden, a covered lake, long galleries for pictures & tapestries and at least 250 suites for guests.  The intent was to have a 'small castle' completed first, and then the 'large castle'.  Plans for construction were impeded by - Spoiler Alert - his wife's death from the influenza pandemic in 1918, and finally the impact of the Wall Street Crash in 1929.  In 1930, 300 acres were sold to the local council and no part of the design was ever realized.

Landsdowne House, London,
as seen in an 1811 engraving.
ACKERMANN'S REPOSITORY OF ARTS,
LITERATURE, COMMERCE, FASHIONS,
AND POLITICS.
Selfridge leased one of London's finest houses, Landsdowne House, for his city residence from 1921 to 1929.  Begun for the third earl of Bute, Prime Minister John Stuart, it was sold unfinished about 1765 to William Petty-Fitzmaurice, the earl of Shelburne, later first marquess of Landsdowne, and finished to plans by Robert Adam in 1768.

A detail from Greenwood's Map of London, 1830,
showing Landsdowne House facing its own front garden
between Berkeley Square and the rear garden of
Devonshire House.
A great asset of the house was that it faced a front garden, unique for London.  (This allowed Devonshire House a view all the way to Berkeley Square.  To read the story of the now-demolished mansion that was the center of life for the Cavendish family from the October 18, 2011, post of The Devoted Classicist, click here).

The plan of the principal story of Shelbourne House
as Landsdowne House was first known,
as published by Robert Adam, 1765.
A widening of the road in 1930 required a removal of the flanking pavilions and the front rooms of the main block.  A somewhat similar façade provided a replacement and two of the grand rooms were purchased by museums in the United States.  The building is now Landsdowne Club.

The exterior of Landsdowne House
as photographed for Arthur Bolton's
THE ARCHITECTURE OF ROBERT AND JAMES ADAM,
published 1922.  Country Life Picture Library.
The Organ Drawing Room has been restored and can now be seen in the Philadelphia Museum of Art.

The Drawing Room of Landsdowne House
showing the niche originally intended for
Lord Bute's vastly expensive mechanical organ.
Philadelphia Museum of Art.
The Eating-room, as it is labeled on the Adam floor plan, has also been restored and is on view in the Metropolitan Museum of Art.  In addition to the plaster work, the millwork, and the marble chimneypiece, even the original flooring is installed in the New York City location.  Plaster copies of the statues now occupy the niches, as the antique sculpture was dispersed in the 1930 Landsdowne sale.  The original furniture designed by Robert Adam and executed by John Linnell no longer survives.

The Dining Room of Landsdowne House
showing the niches that originally held
nine ancient marble statues.
Metropolitan Museum of Art.
Landsdowne House, known as a center for political entertaining in earlier times, was a noted Jazz Age party mansion for Selfridge.  It was leased furnished and came with twenty servants.

Mr. Selfridge's Room at Landsdowne House
as it appeared in 1921.
Photo:  English Heritage.
Numerous liaisons included both of the dancing Hungarian twins known as the Dolly Sisters.

The Dolly Sisters.
Photo:  Wikipedia.
And there was reportedly an affair with the divorcee, Syrie Barnardo Wellcome, later to be known as the famous Lady Decorator, Syrie Maugham.

Syrie Maugham.
Photo:  Tumblr.
Forced into retirement from Selfridge's in 1939, he was essentially penniless in his later years after spending his fortune on extravagant living and an addiction to gambling, not to mention the succession of mistresses who were essentially refused nothing.  But H.G. Selfridge's showmanship and admiration of architecture has left a legacy in retail history.


The Paris Apartment of Antiquarian Akko van Acker

$
0
0
Bavarian painted terra-cotta and carved wood deer heads
decorate an alcove in the Dining Room of the Paris apartment of
 Akko van Acker.  An 18th-century painted wall covering
provides a beautiful background for an Italian console
with a vase painted in the style of Imari, terra-cotta mandarin
figures and 18th century English treen.  The painted wood
mountain goats are also Bavarian.
Speaking with a John Tackett Design client over the phone this morning from her second home in the south of France about shopping for a few antiques that were needed for her new home here in the States, I was reminded of the wonderful dealers in Paris who provide the most personable continental furnishings.  One of the antiquarians at the top of the list is Akko van Acker who had a shop on the rue du l'Université (perhaps now closed?).   
The 18th century Italian faux-marbre door is one of a pair
owned by Akko van Acker before he had the apartment.
Photo by Marina Faust for Architectural Digest.
Dutch-born van Acker's Right Bank pied-à-terre, decorated with the help of designer Ricardo Wilhelmsen and the Paris-based firm Interiors, was memorably featured in the March, 1992, issue of Architectural Digest.  The 18th century doors from an Italian palazzo inspired an Italian theme for the shell of the apartment which was gutted and completely rebuilt with all new interior partitions, moldings, and other architectural details.

18th century books are arranged on and around a games
table with an open top in the Living Room.
Photo by Marina Faust for Architectural Digest.
The walls in the Living Room are a burnished gold Venetian plaster and the floor is Italian terra-cotta tile.  When a wall was removed to enlarge the Living Room, it was determined that a beam and supports would be required for structural needs;  the solution was classical columns that separate the two areas of the room.

A sitting area of the Living Room
with a glimpse into the Dining Room beyond.
Photo by Marina Faust for Architectural Digest.
Characteristic of the interesting mix, a pair of circa 1830 English chinoiserie snowscapes are placed between pilasters above a tabletop arrangement with a rare bronze Pekingese flanked by a pair of 18th century Japanese Ho-Ho figures.  An antique wood armature model sits in one of a pair of 19th century Italian cane-back chairs with carved frames in simulation of rope.

A view of the Living Room showing parts of the
two areas separated by columns.
Photo by Marina Faust for Architectural Digest.
A painted Bavarian console displays a collection of porphyry obelisks and tazzas flanked by a pair of Venetian jars with lids, overlooked by a portrait of a West Indian governor.  The sofa table displays a flock of late-18th century carved and painted wood parrots.

The sitting area in front of the fireplace
in the Living Room.
Photo by Marina Faust for Architectural Digest.
The faux-marbre painted chimneypiece dates from 18th century Florence.  A late-18th century Dutch page's chair is placed nearby with an antique japanned cabinet adjacent, along with a large 18th century Italian 18th century terra-cotta vase painted in the Chinese Imari style.  A Giacometti bronze and glass low table sits on an antique Persian rug.

Painted boiserie was added to the Dining Room.
Photo by Marina Faust for Architectural Digest.
In the Dining Room, the casement window is flanked by a pair of Venetian wall brackets, each supporting a Burmese carved wood deer.  Painted marquises with their original tapestry are placed on angles in the corners.  The Waterford chandelier dates from the 18th century, as do the Dutch chairs around the table.

Silk fabric in a wood grain pattern is used to great effect
in the Master Bedroom.
Photo by Marina Faust for Architectural Digest.
The 18th century English cabinet in the Master Bedroom was bought from David Hicks, from the collection of Lady Mountbatten at Wardour Castle.  A circa 1570s Dutch painting hangs from a rod display system above a Dutch side chair.  A 17th century Dutch marine painting hangs over the bed with classical fragments of feet on a wicker bedside chest and a brass-lined peat bucket serving as a trash can.

Antiques dealer Akko van Acker.
Photo by Marina Faust for Architectural Digest.
In the article by Judith Thurman, it states that his first shop was opened in St.-Tropez in 1967 with the Paris shop following in 1975.  Clients have included Rudolph Nureyev, Yves Saint Laurent, and Ralph Lauren.  A few months of the year are spent at his villa in the south of France, in the charming village of Ramatuelle, the article goes on to say, and most of his entertaining is done there. 

Scorpios: Sold

$
0
0
An era came to an end a few weeks ago for the private island of Scorpios (or Skorpios), the former retreat of Greek shipping tycoon Aristotle Onassis.  His grand-daughter Athina Onassis Roussel, who inherited it after the 1988 death of her mother, sold the 74 acre island in the Ionian Sea to Russian fertilizer billionaire Dmitry Rybolovlev via a foundation in the name of his 24 year old daughter Ekaterina Rybolovlev.

Ekaterina Rybolovlev.
Photo via New York Social Diary.
The sale, which also included the adjacent island of Sparti, was reportedly in excess of US $150 million.  When Aristotle bought Scorpios in 1962 (or 1963 according to some sources) for the equivalent of US $15,000 (or $20,000 as some sources said), it was barren of vegetation and unoccupied.  Onassis built roads, a heliport and eventually a small villa and other auxiliary buildings in addition to planting over 200 varieties of trees.

The island of Scorpios.
Photo via New York Social Diary.
The most important improvement to the island was the dock for the famous Onassis yacht "Christina", named in honor of his daughter, born in 1950. (Christina's mother was Athina 'Tina' Livanos who divorced the womanizing Onassis [having an affair with Maria Callas and others] and married twice more, first to John Spencer-Churchill, Marquess of Blandford, and later to multi-billionaire Stavros Niarchos, widower of her older sister Eugenia and Onassis's rival). Originally a WWII Canadian anti-submarine frigate, it was bought for the scrap value of US $34,000 and overhauled at an expense reported to be US $4 million. 

A recent view of the yacht "Christina" and tender.
Photo via Wikipedia.
At a length of 325 feet, the "Christina" has 18 passenger staterooms in addition to a master suite, accommodating as many as 34 passengers served by a crew of 39.  Guests included the most famous names of the day in politics and entertainment.

Plans of the yacht "Christina".
The bottom surface of the swimming pool
on "Christina" is decorated with a mosaic
Minotaur pattern and can be raised at the
touch of a button to become a dance floor.
Photo via marin.ru.
Mrs. Onassis at the shipboard reception
following her wedding.  In the main saloon,
a portrait of step-daughter Christina can be
seen over the fireplace in the background.
Photo via Bunky Cushing blog.
The island was in international news in 1968 when the little chapel on Scorpios became the site of the wedding of Onassis to the former first lady, Jacqueline Kennedy.  Said to be the most famous woman in the world at the time, she became known in the headlines as Jackie O. from then on.

The bride in a white lace dress by Valentino
is led by the groom through the crush of
photographers following the wedding as
Caroline stays close to her mother.
Photos via HOLA magazine.
The ultimate trophy wife, Mrs. Onassis immediately brought in her decorator, which by that time was Billy Baldwin.  Although first in contact with Jacqueline Kennedy in 1963 by way of their mutual friend Mrs. Paul "Bunny" Mellon for a weekend house in Upperville, Virginia, Baldwin was called in after the assassination to pull together the house in Georgetown using their personal furnishings taken from the White House.  That project, too, was cancelled when Jacqueline Kennedy moved to New York City instead.

Jacqueline Kennedy (left) and her sister
Lee Radziwill (right) leaving the Georgetown
house on December 18, 1963 with
Billy Baldwin carrying what appears to be
a roll of renderings, accompanied by a
Secret Service agent.
Image:Bettman/CORBIS.
In his book, BILLY BALDWIN REMEMBERS, his recollections jump to October, 1968, and receiving a call from the yacht "Christina", again asking to meet right away.  Baldwin was in Athens as soon as possible, just three days after the wedding, to be taken to Scorpios to discuss decorating the new house.

Jacqueline Onassis and Billy Baldwin
in the helicopter to depart for Scorpios, 1968.
Photo from BILLY BALDWIN REMEMBERS.
The project, to be completed in less than two months, was to have a comfortable house on the island so her children would not have to stay on the yacht when they came at Christmas.  Additions were being built to an existing structure that became known as the Pink House.  It was near the sea but away from the harbor.  A big room that was to serve as both a living and dining room was constructed and the existing long building with a cloister served as the bedroom wing.

The villa on Scorpios known as the Pink House.
Photo via NYSD.
 Baldwin writes that as each piece of furnish was completed it was sent to Athens on the nightly jet of Olympic Airways which Onassis founded.  Baldwin never saw the finished house but received a cable just after Christmas. "Happy New Year, and congratulations on the Erectheum of Billy, which we are now enjoying.  Love, Ari, Jackie."

Jackie and Ari.
Image via NYSD.
Sand was brought in from other islands to create some small beaches, one of which was given a hut-sized cottage in the traditional Greek style.  But even this isolation did not allow privacy from the paparazzi who caused international outrage when telephoto lens shots of Mrs. Onassis sunbathing nude were published.  Both of Onassis's children, Alexander and Christina, are buried on the island.  Mrs. Onassis was given a cash settlement (undisclosed but widely reported to be around US $20 million) after Ari's death in Paris and Christina inherited the bulk of her billionaire father's estate.  After Christina's early death, ownership of the island passed to her only child Athina, who has visited Scorpios only twice in her 28 years.

The beach cottage in the traditional Greek style.
Photo:  Hello magazine.
Ekaterina Rybolovlev is no stranger to high-priced real estate.  Her father has a house in Hawaii that he bought from actor Will Smith in 2011, and a residence in Paris with his full-time home being a duplex penthouse in Monaco.  (The house in Geneva was demolished to be rebuilt in a royal French style, but the site has just been just a hole for several years).  Located atop the exclusive La Belle Epoque, news reports state he paid US $300 million (or $308 according to some) for the rebuilt apartment that had been the site of a devastating fire started by an employee hoping to win his rich boss' favor by saving his life.  (The scheme did not work).

The duplex penthouse at La Belle Epoque, Monaco,
was bought from the widow of billionaire Edmund Safra,
after the fire intentionally started by a male nurse
using a Slakin candle, and renovated
on speculation by the Candy brothers (inset).
Dmitry Rybolovlev made news in 2008 when he bought the Palm Beach, Florida estate Maison de L'Amitie from Donald Trump for $95 million (or $100 million as there was a $5 million allowance).  First listed at $125 million, it was the most expensive house in the country at the time.  Located at 315 North County Road, it was built on the site of the famous Bythedunes estate, razed by Leslie Wexner.  (My former project, Montsorrel, is next door and the post about that notable house may be read here).  After studying the benefits of various divorce venues, Ekaterina's mother Elena filed for divorce in Palm Beach in 2009, asking for Maison de L'Amitie and half of Dmitry's fortune, estimated by Forbes in March, 2013, to be $9.1 billion.  Despite the high price of the house, it was bought as a 'tear down' and deemed in 'unlivable' condition at the time of purchase.  Ekaterina has visited twice and stayed in the pool house, but no one has spent the night in the main house which has been maintained but not improved because of the pending litigation. 

A birds eye view of Maison de L'Amitie, Palm Beach,
with part of Montsorrel seen in the foreground.
Photo via forbes.com
In December, 2011, Ekaterina's father bought her a Manhattan apartment via a trust in her name for her residence while in school.  Located at 15 Central Park West, it is an $88 million penthouse designed by architect Robert A.M. Stern.  The seller was Joan Weill, whose husband Sandy was formerly chief executive and chairman of Citigroup.  Decorated by Mica Ertegun, it was featured in the April, 2010, issue of Architectural Digest.  The furniture did not come with the sale of the apartment, however.

The floor plan of the penthouse apartment
at 15 Central Park West, New York City.
It serves as 'student housing' for Ekaterina Rybolovlev.
Private island retreats have increased in popularity among rich celebrities such as actor Johnny Depp, illusionist David Copperfield, Microsoft cofounder Paul Allen, Oracle CEO Larry Ellison, and British business magnate Richard Branson.  There is speculation that Scorpios could be developed as a resort, but the chances are just as likely that it could remain private.

480 Park Avenue: Before and After

$
0
0
The Entrance Hall of an apartment at
480 Park Avenue, New York City,
after improvements by John Tackett Design
and furnishings by Bunny Williams.
During my tenure at Parish-Hadley during the 1980s, there were many dozens of projects decorated by Bunny Williams where we worked as a team and I supplied the architectural services.  Such was the case for this project after we had each gone out on our own.

The old padding of the wall-to-wall carpet
that had previously covered the terrazzo
floor in the Entrance Hall.
Photo:  Billy Cunningham for Architectural Digest.
John Tackett Design has the greatest appreciation for interior designers who understand and value good architecture, and there is no one today that excels in that category more than Bunny Williams.  She understands that a total package of good design requires more in her profession than just selling things.

The Living Room 'Before' improvements
at 480 Park Avenue, New York City.
Photo:  Billy Cunningham for Architectural Digest.
There was a construction boom in Manhattan during the second half of the 1920s with high-rise residential buildings making up the bulk of the activity.  Since profits could be higher in luxury construction, real estate investors sank their money into apartments and apartment-hotels that contributed to the trend that turned Manhattan into an enclave for the rich.  Park Avenue, with the railroad tracks sunk out of sight, became a prime area for these apartment buildings as new technology allowed relief from the vibration of the trains.

The Living Room 'After' renovation by
John Tackett Design
and furnishing by Bunny Williams.
Photo:  Billy Cunningham for Architectural Digest.
Real estate developer Sam Minskoff had completed several projects with Emery Roth before commissioning him to design the luxury building at 480 Park Avenue.  Constructed 1928 to 1929 with an exterior skin of buff brick and limestone with cast terra-cotta ornament, the building is a prime example of the Renaissance Revival style so popular at the time.  The upper floors step back to allow light and air in addition to creating opportunities for terraces high above Park Avenue as well as East 58th Street.  Wood-burning fireplaces and relatively high ceilings were also featured.  The water tower is concealed in the form of a small but picturesque palazzo.  Although the larger apartments contain rooms for live-in staff, maid and butler services were originally available to all tenants, and meals could be taken in an elegant restaurant for the tenants.

Architect's rendering of 480 Park Avenue.
Image from MANSIONS IN THE CLOUDS.
480 Park Avenue is a nineteen-story building with original apartment sizes ranging from three to thirteen rooms in both simplex and duplex plans.  Lucrative rental income from the ground floor and first floor allow relatively low maintenance rates for the apartments, now a co-operative building.

Another view of the Living Room 'After' improvements
by John Tackett Design
and furnishings by Bunny Williams.
Photo:  Billy Cunningham for Architectural Digest.
For a Florida-based couple with two young daughters, the apartment at the southeast corner with two terraces, three bedrooms, and two maid's rooms that could be combined to create a guest room fit the bill.  But little had changed in terms of decoration in more than thirty years.

The original Dining Room was the largest room
in the apartment, but it was featureless
other than a pair of French doors to a small terrace.
Photo:  Billy Cunningham for Architectural Digest.
Limited investigation by the owners before purchase revealed wood floors in bad shape under the old wall-to-wall carpet.  The Entrance Hall and Foyer (not shown in these photographs) had not been checked, however, and imagine the surprise when I pulled back a corner to reveal the terrazzo floor inlaid with a classic design with brass strips.  There was some damage around the perimeter where the "tackless" strips had been nailed into the floor, but that was repaired by a craftsman brought out of retirement by the general contractor for the project, Ron Metell

A bookcase cabinet that holds a TV
was added to the original dining room along
with pine paneling to create a Library.
Architectural detailing by John Tackett Design,
furnishings by Bunny Williams.
Photo by Billy Cunningham for Architectural Digest.


The long blank wall of the original dining room
is shown 'in progress' as the paneling by
John Tackett Design is being installed.
Fabrication by Craz Woodworking Associates, Inc.
Photo by Billy Cunningham for Architectural Digest.


That same view of the original dining room
'After'.  Architectural detailing by John Tackett
Design.  Furnishings by Bunny Williams.
Photo by Billy Cunningham for Architectural Digest.
Most of the architectural improvements by John Tackett Design are not really evident in these photos published in the February, 1994, issue of Architectural Digest magazine.  An exception is the transformation of the original dining room, the largest room in the apartment.  The new out-of-town owners were looking forward to sampling the New York City restaurants when they visited and did not need a formal dining room, so this space was reinvented as a cozy Library with the addition of custom made pine paneling, expertly fabricated to my design by Peter Craz.  The true beauty of the wood and the excellent execution of the millwork are not fully evident in the photos, I must add.

The Master Bedroom 'Before'.
Photo:  Billy Cunningham for Architectural Digest.
The Master Bedroom 'After'.
Photo:  Billy Cunningham for Architectural Digest.
While all the bedrooms received improvements such as air-conditioning that allowed the window units to be removed, all the bathrooms were given a complete make-over (not shown in the published photographs).

The third bedroom 'Before'.
Photo:  Billy Cunningham for Architectural Digest.


The third bedroom 'After'.
Photo:  Billy Cunningham for Architectural Digest.
In the third bedroom, a pair of bookcases that had flanked a niche for the bed were removed, but the pair flanking the door (from the Entrance Hall) were retained and given some detailing.

In addition to the combining of staff rooms to create a Guest Room and bathroom, the old servant's hall was completely renovated to serve as a Breakfast Room (not shown in the published photographs) for the family and finished with custom glass-door cabinetry in the style of a 1920s pantry.  Also, improvements were made to update the kitchen.

To read more about the work of the building's original architect, see MANSIONS IN THE CLOUDS: THE SKYSCRAPER PALAZZI OF EMERY ROTH by Steven Ruttenbaum.  The archives of the firm were donated to Columbia University's Avery Library and the holdings of the files for this building may be viewed there by appointment.

To see more of the wonderful interior design by Bunny Williams, her charming store Treillage, Ltd., and her inspiring lines of furniture and home furnishings at Bunny Williams Home, click on her website bunnywilliams.com.

More examples of my work featured on earlier blog posts by be seen by clicking on John Tackett Design Portfolio under LABELS in the right hand margin of the web version of The Devoted Classicist.

Palacio de Liria: The Madrid Residence Of The Duchess Of Alba

$
0
0
The garden view of Palacio de Liria,
also known as Liria Palace, Madrid, Spain.
Photo by Ricardo Labougle via World of Interiors.
Catetana Fitz-James Stuart was born at Palacio de Liria, the family palace in Madrid, Spain, in 1926.  With more than forty noble titles recognized by an existing government, and 150 hereditary titles, she holds the current Guiness World Record for nobility.  Her senior title is Duchess of Alba.



A bird's eye view of Liria Palace, Madrid.
Photo via Wikipedia.
The only child of the 17th Duke of Alba, Jacob Fitz-James Stuart y Falco, a diplomat, and Maria del Rosario de Silva, 9th Marchioness of San Vicente del Barco, a wealthy with a list of titles herself, Cayetana grew up in her family's art-filled palaces, castles, country houses and estates across Spain. 

The Liria Palace, Madrid.
Drawing from the private collection of a
Devoted Reader.
While living in London during the Spanish Civil War, Liria Palace was essentially gutted by the fire that resulted from a bombing.  Fortunately, the most important art works had been sent to the British Embassy in Madrid and to the Banco de Espana.  And the Gobelin tapestries had been sent to the Real Fabrica de Tapices for cleaning and restoration.

The Countess of Quintanilla (now Romanones),
Jacqueline Kennedy, and the Duchess of Alba
at a 1966 bullfight.
Photo via Daily Mail.
James Fitz-James, the Duke of Berwick, settled in Spain in the early 18th century and was the first owner of the Liria Palace;  his descendants completed the palace, described as the most elegant in Madrid, at the end of that century.

The Garden Elevation of Liria Palace, Madrid.
Drawing from the private collection of a
Devoted Reader.
 When the previous Duchess Cayetana, a widow and muse of the artist Goya, died without children at age 40, the palace passed into the Alba family via a nephew. 


The Attic Floor Plan, Liria Palace.
Drawing from the private collection of a
Devoted Reader.
The Second Floor Plan, Liria Palace.
Drawing from the private collection of a
Devoted Reader.
The First Floor Plan, Liria Palace.
Drawing from the private collection of a
Devoted Reader.
The Ground Floor Plan, Liria Palace.
Drawing from the private collection of a
Devoted Reader.

The duchess's father, the Spanish ambassador to Britain after the Civil War, was familiar with the great architect Edwin Lutyens from some of the earlier work at Liria and hired him to design the reconstruction of the palace. 

A section through Liria Palace, Madrid.
Drawing from the private collection of a
Devoted Reader.
The plans were carried out after the architect's death;  work began in 1948.  The design was based on the plans by the original archtects, first Louis Guilbert and then Ventura Rodriguez.
The first wedding of the Duchess of Alba, 1947.
The groom was Don Pedro Luis Martinez de Irujo y Artocoz.
Photo:  Time Life Pictures, Getty Images via Daily Mail. 
The duchess writes in her memoirs YO, CAYETANA (sadly, available only in Spanish) that she developed a passion for decoration and antiques after visiting so many beautiful houses when she lived in England and the house of her godmother, Queen Victoria Eugenia of Spain.  Her first husband, Luis Martinez de Irujo (son of the Duke of Sotomayor), shared this passion and helped in rebuilding the palace.  The marriage was a great union of Spanish noble families and was reported by The New York Times as "the most expensive wedding of the world."  Six children were born before Martinez's death in 1972.

The second wedding in 1978.
The groom was Jesus Aguirre y Ortiz de Zarate
Photo:  HOLA! magazine.
The second marriage caused some controversy as the groom, Jesus Aguirre y Ortiz de Zarate, was of illegitimate birth as well as a defrocked Jesuit priest.  But the marriage was a happy one, by all accounts, ending with his death in 2001.  Secure in her great wealth and social status, the Duchess of Alba was unconcerned about the public shock of her third marriage that was widely covered in the European tabloids.

The third wedding in 2011.
The groom was Alfonzo Diez Carabantes.
Photo:  Associated Press via Daily Mail.
Legal paperwork restricting inheritance and a distribution of wealth and property prevented an outrage from her children, according to sources in the press, after the duchess' marriage to Diez Carabantes, a long-time friend almost 25 years her junior.

The garden of Liria Palace
is said to be the largest in Madrid.
Photo by Simon Watson for W magazine, 2005.
There are four floors of the palace with the ground floor containing offices, studies, the library and archives, and the music room.


The Entrance Hall of Liria Palace.
Photo by Derry Moore from
IN HOUSE.
The Library of Liria Palace.
Photo by Ricardo Labougle via World of Interiors.
The staircase at Liria Palace.
Photo by Ricardo Labougle via World of Interiors.
The staircase and cupola at Liria Palace
was designed by Edwin Lutyens.
Photo by Simon Watson for W magazine, 2005.
The first (principal) floor has all the reception rooms, the dining room, and the duchess's own rooms.

The Goya Room.
Photo by Ricardo Labougle via World of Interiors.
The Duchess of Alba, 1965,
American Vogue via Scala Regia.
"The Duchess of Alba in White"
by Francisco de Goya, 1795.
Photo by Ricardo Labougle for World of Interiors.
 
The other end of the Goya Room at Liria Palace.
The large portrait "Gabriela Palafox y Portocarrero,
Marchioness of Lazan" by Fracisco de Goya about 1804.
Flanking are two portraits of the 13th Duchess of Alba,
one by Augustin Esteve (left) and Joaquin Inza.
Photo by Ricardo Labougle via World of Interiors.
Hall of the Grand Duke
hung with tapestries depicting battles.
Photo by Ricardo Labougle via World of Interiors.
Hall of the Grand Duke
with two portraits of the Grand Duke of Alba.
One in the corner by Rubens painted about 1603
after a lost original by Titian and one by Titian
himself, lower left, painted about 1570.
Photo by Ricardo Labougle via World of Interiors.
The Dining Room at Liria Palace.
Gobelins tapestries from the "New Indies" series
were made after cartoons by Dutch painter
Albert Eckhout.
Photo by Ricardo Lobougle.
The Green Room is next to the duchess's bedroom.
Portraits by Fernando Alvarez of the duchess
(over the sofa) and her eldest son (over the fireplace)
the Duke of Huescar, were painted in the 1950s.
Photo by Ricardo Labougle.
The Blue Sitting Room at Liria Palace.
Photo by Simon Watson for W magazine.
The Flemish Salon at Liria Palace.
Photo by Simon Watson for W magazine.
The Spanish Salon at Liria Palace.
Photo by Simon Watson for W magazine.
The second floor has the private sitting rooms and some of her six children have private apartments there as well.  The third floor has servants rooms, the studio where the duchess used to paint, and a room that houses the collection of royal uniforms.

Armand Albert Rateau,
the renown French Art Deco cabinet maker,
1882 to 1938 in a portrait by Jean Dunard.
Image:  Wikipedia.
Liria Palace has been in the news again lately with the publicity surrounding an auction at Chrisitie's Paris on May 23, 2013.  Some Art Deco masterpiece furnishings designed by Armand Albert Rateau for a suite of private rooms for the Duchess of Alba, dona Maria del Rosario de Silva y Gurtubay, the mother of the current duchess, were sold to raise cash for the House of Alba.

Rateau's 1921 plan of the bathroom.
Image via Aestheticus Rex.
The House of Alba issued this statement regarding the sale of furnishings that the decorative arts community had been presumed lost in the bombing during the Spanish Civil War.  "The House of Alba has decided to sell the Armand Albert Rateau furniture commissioned by the 17th Duke of Alba, don Jacobo Fitz-James Stuart in the early 1920s in France, in order to support the funding of its heritage and of its various palaces throughout Spain as well as supporting projects of the family.  This is part of a general reorganization undertaken by the House of Alba, as illustrated by the recent exhibition 'El Legado Casa d'Alba', the first ever organized in Madrid between December 2012 - March 2013.  These pieces of furniture are all that remains of a larger ensemble that no longer exists.  They do not form part of the historic collection of the House of Alba nor do they relate to the history of Spain".

The duchess's bathroom designed by
Rateau showing some of the furnishings
sold at the Christie's Paris auction.
Photo from Musee des Arts Decoratifs
via Aestheticus Rex.
Despite the missing mirror and some other replacements, the coiffeuse (lot 123) in the niche brought $854,696.  The lit de repos (lot 118) placed before it, brought $544,602.  Of the magnificent torcheres which were originally a set of four, two lampadoire aux oiseaux (lots 119 and 120) were sold for $2,151,953 each.  The table basse aux oiseaux (lot 122) shown at the left of the sunken bathtub sold for $2,151,923.  All these were within the estimated price range.  The baignoire (lot 124), the enormous marble bathtub, sold for $79,462, well below estimates.  The canapé (lot 121), not seen in the photograph above, which had restorations and losses, did not sell.

For more about the history of these noteworthy rooms created by Rateau, see the posts of the always interesting blog Aestheticus Rex hereand here.  And for highlights of the sale, see the post by everyone's favorite Mitchell Owens for the on-line version of Architectural Digest here.

For those reading via an e-mail subscription, visit the web version of The Devoted Classicist for a variety of extra features such as Comments, Popular Posts, Blog Archive, and Search This Blog.


Same House, Same Owners, Different Decorators

$
0
0
The renovated Greenwich, Connecticut
  home of Allison and Warren Kanders
 as it appeared in Architectural Digest, 2001.
In 1997, Warren Kanders bought a handsome Colonial Revival house in Greenwich, Connecticut, that was featured in an Architectural Digest article from 200l.  Allison Smith had quit her job as a coordinator at Comedy Central and they married at the Metropolitan Club in New York City in June, 1998.  Warren Kanders is the Executive Chairman of Black Diamond, Inc., a company that manufactures and supplies armored military vehicles as well as other safety products for defense, homeland security, and commercial markets;  He is also President of Kanders & Company, Inc., a private investment firm.  In addition, since 2011 he has owned, in partnership with hotel investor Alan Kanders, the Mayflower Inn & Spa in Washington, Connecticut (a John Tackett Design project with Mariette Himes Gomez for the original owners to be featured in a future post).

Homeowners Warren and Allison Kanders
with their son William in the 2001 issue of
Architectural Digest.
Working with architect Oliver Cope  to extensively renovate and expand the house, Mica Ertegun of MAC II was hired as interior designer with the results featured in Architectural Digest in 2001.  Now, the house has been published in Architectural Digest again, still with the Kanderses as the clients, but with interiors redone by Joe Nahem of Fox-Nahem Associates.  Warren Kanders is now on the Board of the Whitney Museum and the homeowners wanted contemporary art to play a larger part in the décor.  The aspect that interests The Devoted Classicist is that he would not have been sure which pictures were from a 1990s design and which were from a concept 12 to 15 years later.  Not that this is necessarily a bad thing, just interesting.

Mica Ertegun (left) who designed the interiors in 2001,
and Joe Nahem (right) who redesigned the interiors in 2013.
Take a comparative look, room by room, and see what you think, Devoted Reader.  The text in the article stated that the owners now wanted a "Cutting Edge" interior to compliment their contemporary art collection.

The rear of the Kander home in Greenwich
as it appeared in Architectural Digest, 2001.
The landscape was done by Peter Cummin and Claudia Levy of Cummin Associates in Stonington, Connecticut, one of the most respected landscape architecture firms in the country.

The Entrance Hall as decorated by
Mica Ertegun, 2001.
Photo:  Architectural Digest.
The Entrance Hall decorated by Joe Nahem
as it appears in 2013.
Photo:  Fox-Nahem Associates
In the Entrance Hall, the flooring is wood with insets of tile painted to resemble sandstone, according to the magazine text, reminiscent of Bill Blass's Sutton Place apartment Entrance Hall floor (a project MAC II was associated with).  The sconces and Irish mirror are replaced with art and the lantern is replaced with a contemporary glass dish.  The new chairs flanking the fireplace appear to be contemporary versions of a classic klismos model.  The 1920s table by the windows remains.

The Living Room, 2001.
Photo:  Architectural Digest.
The Living Room, 2013.
Photo:  Fox-Nahem Associates.
In the Living Room, traditional furnishings are mostly replaced with intentionally independent pieces giving allusions to different Twentieth Century movements to compliment the contemporary art.

The Dining Room, 2001.
Photo:  Architectural Digest.
The Dining Room, 2013.
Photo:  Architectural Digest.
The walls of the Dining Room remain with a dark glaze although in a different color, but the furnishings are artisan-made rather than antiques.  The Nordic chandelier from the Chateau de Groussay auction is replaced with a specially made hanging light by David Wiseman.  Fox-Nahem designed the table and chairs with replace the antique Irish table and the northern European versions of Louis XVI chairs with custom stenciled fabric (also from the Bill Blass apartment).

The Bar, 2001.
Photo:  Architectural Digest.
The Bar, 2013.
Photo:  Fox-Nahem Associates.
A room off the Gallery that has a full bar is referred to as the Bar.  It changed from neutral warm with some antiques to neutral cool with all contemporary furniture.

Master Bedroom, 2001.
Photo:  Architectural Digest.
Master Bedroom, 2013.
Photo:  Fox-Nahem Associates.
Master Bedroom, 2013.
Photo:  Architectural Digest.
The Master Bedroom also changed from warm traditional neutral to cool contemporary neutral.  Of particular note is the custom made bed fabricated from Corian.

Allison Kanders, 2013,
in her Fox-Nahem living room.
Photo:  Architectural Digest.
According to The New York Observer, the Kanderses have bought a $17.8 million Manhattan townhouse at 16 West 12th Street and are relocating from Greenwich, Connecticut, to Greenwich Village.  Whether or not they will keep both as a Town and Country arrangement, it is not known.  In any case, the 'before' photos of the townhouse and the floor plans may be seen on the Observer link;  perhaps the 'after' will appear in Architectural Digest in the future.

Eltham Palace, London

$
0
0
Eltham Palace, London.
Image via Flickr.
One of the Great Houses of London that, sadly, The Devoted Classicist has never visited is Eltham Palace.  Although essentially an Art Deco mansion, the Great Hall dates from the 1470s, built by Edward IV.

The site plan of Eltham Palace
showing the remaining buildings.
Image via british-history.ac.uk
In the 16th century, Eltham was eclipsed by nearby Greenwich Palace which had river access.  Eltham was continued to be used for hunting until the English Civil Was when the trees and deer were removed.

A view of Eltham Palace, about 1653,
said to be by Peter Stent, just before
major demolitions in the 1650s.
Image from English Heritage.
 
"The North-East View of Eltham Palace in the County of Kent",
a 1735 color engraving by Samuel and Nathaniel Buck.
Image from English Heritage.
Eltham Palace was used as a farm with the buildings leased to tenants. A villa was built within the moat walls in the early 19th century.  A campaign to save the Great Hall resulted in restoration in 1828, but it was still used as a barn.

The Great Hall at Eltham Palace
as it appeared in a 1937 issue of  Country Life
during the residency of the Courtaulds.
Photo from Country Life Library.
 
Stephen Courtauld, brother of textile magnate Samuel who founded the Courtauld Institute of Art (which, along with the Courtauld Gallery [Impressionist and Post-Impressionist Art], is located in Somerset House, London), and his wife Virginia "Ginie" leased Eltham from the Crown Commission in 1936.  Stephen Courtauld did not enter the family business, but after serving in World War I, his wealth enabled him to travel extensively and pursue his cultural and philanthropic interests. Stephen Courtauld was financial director of the famous British film company Ealing Studios, a trustee of the Royal Opera House in London's Covent Garden, and he provided financial support for the Courtauld Galleries in Cambridge's Fitzwilliam Museum.

Stephen and Virginia Courtauld
in the Drawing Room of the former home
with their pet ring-tailed lemur
Mah-Jongg.
The 1934 portrait was painted by
Leonard Campbell Taylor.
Image via English Heritage.
A property of The Crown Estate, Eltham Palace had essentially been discarded by the monarchy, but the Courtaulds saw the possibilities to make it a fashionable home where they could entertain and develop their interests in orchids (Stephen) and roses (Ginie).  Alterations were allowed with only a few provisions to save the hall and some fragments of 15th century architecture.  Architects John Seely and Paul Edward Paget created an opulent house with an exterior in the Wrenaissance style (named after Christopher Wren) popular in high-style English architecture of the day.

A panoramic view of the entrance to Eltham Palace.
Photo from Wikipedia.
The interiors, however, were sleek Art Deco and reminiscent of a Hollywood film set, not surprising with the Ealing Studios connection.  Having all the modern conveniences:  radiant heating concealed in ceilings and floors, synchronized electric wall clocks, and a central vacuum system, much of the furniture was built-in and the most of the walls were covered in expanses of exotic wood veneers to maximize the modern, uncluttered experience.

Ground Floor and First Floor Plans
of Eltham Palace.
Image from English Heritage.
With the exception of the Entrance Hall, most of the other rooms were designed by Peter Malacrida, an aristocratic Italian playboy/decorator.  (Malacrida also designed the interiors of their luxury yacht "Virginia").

The restored Entrance Hall at Eltham Palace.
Photo from Country Life Library.
The Entrance Hall is an equilateral triangle with curved walls and a domed ceiling.  The 19 ft diameter Art Deco carpet was designed by Marion Dorn;  the original is now in the collection of the Victoria & Albert Museum, but a replica has been made to cover the wooden dance floor.  Also, replicas of the original furniture has been made by Neil Stevenson.  Extraordinary inlaid wood panels by Swedish designer Rolf Engstromer decorate the walls of Australian black bean veneer flanking the entrance.

The restored Dining Room.
Photo from Country Life Library.
Another view of the restored Dining Room.
Photo from Country Life Library.
The fireplace in the Dining Room.
Photo from English Heritage.
The walls of the Dining Room, designed by Peter Malacrida, are bird's eye maple with the ceiling covered in aluminum leaf.  A bold Greek key motif in black lacquer and aluminum leaf is featured on the passage doors of the room and the fireplace.

Mrs. Courtauld's Bedroom, restored.
Photo from Country Life Library.
The fireplace in Mrs. Courtauld's Bedroom.
Photo from Country Life Library.
In Mrs. Courtauld's bedroom, pilaster-like vertical elements of contrasting tones of wood-grain feature inlaid motifs in the neo-baroque style.

The tub in Mrs. Cautauld's Bathroom.
Photo from Country Life Library.
Mrs. Courtauld's bathroom was a luxurious modern interpretation of a classical bath with onyx, marble and gold mosaics.

The Boudoir in 1937.
This photo was not published.
Country Life Library.
The Boudoir fireplace
as seen in a 1937 issue of Country Life.
Photo from Country Life Library.
The Boudoir featured indirect lighting and a long sofa built-in with bookcases in a niche across from the fireplace.  An embossed leather map covers the chimney breast.

Mr. Courtauld's Study
as seen in a 1937 issue of Country Life.
Photo from Country Life Library.
Mr. Courtauld's Study featured niches with sliding panels that allowed the display of a collection of watercolors to change.

Mr. Courtland's Bedroom
as seen in a 1937 issue of Country Life.
Photo from Country Life Library.
Mr. Courtauld's Bedroom featured a wide alcove lined with wood veneer and included built-in bedside tables and a corner fireplace.

Mr. Courtland's Bedroom
as it appeared May, 1999.
Photo by J Bailey from English Heritage Photo Library.
Concealed doors along one wall of Mr. Courtland's Bedroom opened to an en suite bathroom and a fitted dressing room closet.

An end of a Guest Room showing the
built-in dressing table and other features
as it appeared in a 1937 issue of Country Life.
Photo from Country Life Library.


The closets and built-in dresser
of a Guest Room as it appeared in a
1937 issue of Country Life.
Photo from Country Life Library.
There were numerous Guest Rooms, all with electric heaters and fitted with built-in furniture in the manner of a fashionable cruise ship cabin.  This type of interior was known as the 'Cunard Style', named after the popular steamship line. 

The pet lemur Jongy in his room.
Photo via makeplaywander.blogspot.
The pet lemur's accommodations were well-designed as well.  Artist Mary Adshead (in the circle of Rex Whistler) was commissioned to paint murals evoking the jungles of Madagascar, Mah-Jongg's native home.  There was a hatch with a bamboo ladder that he could descend into the Flower Room of the Ground Floor. Although dearly loved by the Courtaulds, Jongy was a biter and had numerous disastrous encounters with the guests.  Purchased from Harrod's in 1923, Jongy died at Eltham Palace in 1938.

An aerial view of Eltham Palace.
Photo from English Heritage Photo Library.
The Courtaulds' gardens were laid out after an initial design produced by Mawson and Partners in 1935.  There were modifications to incorporate ornamental plantings, however, as the owners were keen horticulturalists.  New areas were laid out to include lawns, a mixed border, a sunken rose garden, a spring bulb meadow, and rock garden and a woodland garden.

The Triangle Garden.
Photo from Country Life.
 
Another garden view.
Photo from English Heritage.
The garden created in the dry moat.
The bridge dates from the 15th century.
Photo from Country Life.
The Courtaulds called the house Eltham Hall which they moved into in March, 1936, after first seeing it in 1933 and taking a ninety-nine year lease.  The time they occupied it as they had originally envisioned it was short, however, as bombing during World War II forced them to spend much time in shelter in the basement.  They gave up the lease in 1944 and went to Scotland to live.  In 1951, the Courtaulds decided to go to Zimbabwe (then Southern Rhodesia, a self-governing British colony) and establish another house with an elaborate garden there.  Stephen Courtauld died there in 1967, and Virginia moved to Jersey in 1970 where she died in 1972.
Eltham Palace
overlooking the rock garden.
Photo from English Heritage.
Eltham Palace was used by the Army Education Corps after World War II.  In 1992, English Heritage took over responsibility for the site, carrying out a program of repair and restoration, and re-creating furnishings in some of the principal rooms using an inventory taken on the contents in 1939.  Also, the 1937 Country Life photos provided documentation of the interiors.  The house is open to the public and may be rented as a venue for wedding receptions and special events.  For more information about visiting Eltham Palace and Gardens, click here.
 
Anne Kemkaren-Smith of English Heritage will present a talk, "The Courtaulds of Eltham Palace: A Public Image and a Private Indulgence" on Sunday, June 2, 2013, at Memphis Brooks Museum of Art.  Sponsored by Decorative Arts Trust, more information on the 2:00 presentation may be seen on the D.A.T. website here and click on Calendar of Events.  The event is free with regular museum admission and open to the public.

Katharine Graham, Georgetown

$
0
0
A late Edo period Japanese screen is mounted
flat on the damask-covered wall above a George II
style side table flanked by Irish armchairs in the
Entrance Hall of Katharine Graham's home in the
Georgetown district of Washington, DC.
Photo by Derry Moore for Architectural Digest.
People often ask who has been my favorite client or my most memorable client.  That is impossible to answer definitively, but certainly the name of Katharine Graham would come to mind.  My architectural work for Mrs. Graham was of a relatively small scale, but it involved her apartment at United Nations Plaza in New York City as well as her house in the Georgetown district in Washington, D.C.  Although the names of the clients are not usually associated with the photos and drawings of my John Tackett Design projects that are shown here at The Devoted Classicist, the interiors of Kay Graham's Georgetown house were featured in the December, 1994 issue of Architectural Digest, so they are presented with the owner identified.

Katharine Graham in the Entrance Hall
of her Georgetown residence.
Photo by Derry Moore for Architectural Digest.
Probably best remembered as the publisher of The Washington Post newspaper during the famous period of Watergate coverage that led to the resignation of President Richard Nixon, Katharine Graham was an important figure in the realm of international politics for years.

Katherine Graham at The Washington Post
with Carl Bernstein and Bob Woodward.
Photo via cdn.historycommons.org
Her multi-millionaire father, Eugene Meyer, had bought the newspaper at a 1933 bankruptcy auction, and when he was named the first president of the World Bank in 1946, he named his son-in-law Philip Graham publisher of The Washington Post.  Philip Graham was very active in political policy-making in the late 1950s and early 1960s, a practice that would be unacceptable in journalism today.  The Grahams became an important part of the Kennedy-Johnson campaign and administration, and their Georgetown home, unusual because it was on a large parcel at the top of the hill known as The Dumbarton Rock, became one of the social-political centers of the time.
The garden elevation of the Graham residence.
Photo by Derry Moore for Architectural Digest.
Bought in 1946 with her father involved in the negotiations, the Grahams and their children lived in the house pretty much as it was until a 1960 renovation that was completed in time to give a party for President and Mrs. Kennedy the night before the inauguration.  (Intended as a drop-by cocktail buffet for 600, a snowstorm turned it into a trek with about 200 arriving by foot).  Among the changes were combining two rooms to become one large Dining Room capable of being divided by folding doors, and replacing the rear porch with a large terrace accessed by new French doors.  The former stables, slightly down the hill, were converted to garages with staff quarters above.  Legendary decorator Billy Baldwin was among others over the years who established a chic interior for what would become the site of many high-profile gatherings, making Katharine Graham one of the most notable hostesses of the Capitol.
Katharine Graham (right) with Jacqueline Kennedy.
An undated, uncredited photo from USA TODAY.
Adding Newsweek magazine and television stations, Philip Graham continued to develop the media conglomerate until his 1963 suicide, at which point Katharine Graham took the helm.  After her parents' death, a number of antiques came from the Meyers' house on Crescent Place in 1972.  Mrs. Clayton "Polly" Fritchey and Joseph Alsop helped incorporate the inherited furnishings;  both were more noted in terms of hospitality and party-giving than taste in decoration, however.  (Joe Alsop was later portrayed in the Broadway play "The Columnist," and the 1994 Architectural Digest article was written by Joe Alsop's wife, Susan Mary Alsop, a member of Jacqueline Kennedy's Special Committee for White House Paintings, pictured on a previous post here).
 
Jacqueline and President Kennedy arriving at the
Georgetown home of Joseph and Susan Mary Alsop in 1961.
Photo by William Smith/Associated Press
via The New York Times.
Despite all of her accomplishments, particularly unusual at the time for a woman, it was not until reading all of the coverage of the famous 1966 Black and White Ball that The (young and impressionable) Devoted Classicist first took notice of Katharine Graham.
Katharine Graham with Truman Capote
greeting guests at the entrance to
the Black and White Ball
New York Times Photo.
Flush with cash from the success of his book IN COLD BLOOD, Truman Capote was at the height of his popularity as an author/celebrity and wanted to celebrate with a memorable party for his society friends.  Inspired by a 1964 black and white ball given by his friend Dominick Dunne and also the 'Ascot scene' from "My Fair Lady", he decided on a masked ball with the dress code limited to black and white. As most of the guests were among the most famous in the world, the idea of masks added a dimension of fun.  (It also allowed a mischievous factor for Capote to relish as he also invited some not-so-famous acquaintances such as his U.N. Plaza doorman and elevator operator to mix anonymously).  Fearing that throwing a lavish party for himself would be seen as vulgar, he avoided potential conflict among his "swans", as he called his beautiful society lady friends, by choosing Katharine Graham as guest of honor.  In George Plimpton's 1997 book on Capote, Mrs. Graham is quoted to say, "Truman called me up that summer and said, 'I think you need cheering up.  And I'm going to give you a ball.' . . I was . . sort of baffled . . I felt a little bit like Truman was going to give the ball anyway and that I was part of the props."  Held in the ballroom of the Plaza Hotel on November 28, 1966, the event remains a highlight in the history of social gatherings, often referred to as the Party of the Century.
The Dining Room of Katharine Graham's
Georgetown residence.
Photo by Derry Moore for Architectural Digest.
A pair of George III dining tables with a collection of George I and II walnut chairs furnish the double Dining Room.  The armorial porcelain is circa 1815 Flight, Barr & Barr.  These items are among those inherited from the collections of her mother, Agnes Meyer.
A circa 1775 George III giltwood mirror
and a circa 1810 to 1815 Empire
Denuelle Porcelaine de Paris centerpiece
in the Dining Room.
Photo by Derry Moore for Architectural Digest.
 
The red Living Room is also said to be evocative of the taste of Agnes Meyer.  It was still as decorated by Billy Baldwin when this writer worked at the house, and quite charming though slightly worn twenty five years later.  (The tied-back silk curtains in the west-facing bay window were tattered in the folds, but noticeable only when the Secret Service required them closed during a visit by President Regan).  The curtains were more-or-less reproduced in an early 1990s redecoration by Nancy Pierrepont who also introduced the striped upholstery fabric.
The Living Room as it appeared
photographed by Derry Moore
for Architectural Digest.
The Library also essentially kept the Billy Baldwin decoration, complimenting the paintings by Morris Louis and Diego Rivera.
The eastern half of the Library.
Photo by Derry Moore for Architectural Digest.
The western half of the Library.
Photo from HORST INTERIORS, 1973, via
Style Court
 
The Master Bedroom.
Photo by Derry Moore for Architectural Digest.
Mrs. Graham's bedroom was among the areas decorated in the mid-1980s by Albert Hadley assisted by Gary Hagar.  In addition to the Entrance Hall and some Guest Rooms, they also decorated Mrs. Graham's Study in anticipation for her retirement from the Washington Post Company and the writing of her memoirs.  (Her book PERSONAL HISTORY was published in 1997 and received rave reviews;  it won the Pulitzer Prize in 1998).
Katharine Graham's Study.
Photo by Derry Moore for Architectural Digest.
My architectural contributions involved improvements to the Entrance Hall, Master Bedroom, Study, and a Packing Room (not shown) for which I designed built-in fittings to allow the steaming/pressing of clothes and packing/unpacking of luggage for Mrs. Graham's frequent travels.
A recent view of the house from the sidewalk.
Photo from Washington Social Diary.
Katharine Graham died in 2001 from the head trauma she suffered after falling on a sidewalk in Boise, Idaho.  She is buried in the Oak Hill Cemetery across the street from her former home.  Mark D. Ein, owner of Kastle security company and the tennis team The Washington Kastles, bought the house in 2002 for $8 million.  At last report, he never moved in and the house has been vacant more than ten years.

Where The Southern Cross The Yellow Dog

$
0
0
"Where The Southern Cross The Yellow Dog"
by Carroll Cloar, 1965.
Casein tempera on Masonite.
Memphis Brooks Museum of Art.
Image copyright estate of Carroll Cloar.
It is the 'Summer of Cloar' in Memphis with a series of events surrounding the exhibition "The Crossroads of Memory: Carroll Cloar and the American South" at Memphis Brooks Museum of Art.  (For a previous post of The Devoted Classicist on the original architect of the museum, James Gamble Rogers, click here).  The show is a centennial retrospective covering about 45 years (he destroyed most of his earliest paintings) of the work of Memphis artist Carroll Cloar, 1913 to 1993, organized by the museum's Curator of European and Decorative Art, Dr. Stanton Thomas.

"The Artist In His Studio"
by Carroll Cloar, 1963.
Casein tempera on Masonite.
Collection of Dianne and Bobby Tucker.
Image copyright estate of Carroll Cloar.
Born on his family's cotton farm in Gibson Bayou, about three miles north of Earle, Arkansas, the sights and traditions of the rural South played an important role in his paintings.  The portrayal of people is predominant theme, along with the landscape.  But vernacular 19th century and early 20th century architecture is also a reoccurring subject, often presented in the background, but as a strong secondary theme.  White clapboard houses, weathered barns, or cubist-simple commercial buildings offer contrast with the bright color of the landscape.

"Sunday Afternoon In Sweet Home, Arkansas"
by Carroll Cloar, 1971.
Acrylic on Masonite.
Collection of Dianne and Bobby Tucker.
Image copyright estate of Carroll Cloar.
Although Cloar considered himself a Realist, some of his paintings fall into the stylistic categories of Regionalism, Pointillism, and Precisionism.  The events depicted in the paintings were often from memory although the settings still remain.  The painting of the Earle train station marked the artist's annual family trip to soak in the medicinal waters every morning and attend the movies every afternoon at Hot Springs, Arkansas, when he was a boy.

"Waiting For The Hot Springs Special"
by Carroll Cloar, 1964.
Casein tempera on Masonite.
Collection of Dianne and Bobby Tucker.
Image copyright estate of Carroll Cloar.
Although Cloar's paintings sometimes showed children of different races playing together, as was his own experience with his neighbor Charlie Mae which he documented in several notable works, paintings that featured adults were usually either all-white or all-black.  Perhaps it was a practice to avoid conflict with potential buyers, not wanting to bring up the issue of integration of adults;  the answer is not known.

"The Smiling Moon Café"
by Carroll Cloar, 1965.
Casein tempera on Masonite.
Collection of Dianne and Bobby Tucker.
Image copyright estate of Carroll Cloar.
The painting at the beginning of the post, "Where the Southern Cross the Yellow Dog" portrays a location in Moorhead, Mississippi, in the heart of Blues country.  The title comes from the W.C. Handy song, "The Yellow Dog Blues" which includes the line "He's gone where the Southern Cross the Yellow Dog", referring to the crossing of two railroad lines that made Moorhead an active passenger and freight connection for decades.  (To see Eartha Kitt sing it accompanied by Nat 'King' Cole on YouTube, try the link here).  The painting is representative of the impoverished locals of the Delta relocating to a place that, hopefully, offers a better life.
 
"Halloween"
by Carroll Cloar, 1960.
Casein tempera on Masonite.
Memphis Brooks Museum of Art.
Image copyright estate of Carroll Cloar.
In "Halloween" an adolescent girl frolics in a field wearing a grotesque mask while hooded figures, "Klu Kluxers", emerge in the distance.  Are the occupants of the house asleep?  Or is it abandoned?  A comment on the future of the South as seen in 1960?  It's up to interpretation.  This one is more ominous than most in the exhibition.  Other paintings are more hopeful.  This is just a handful of the ones that have architecture playing a part of the message, an interesting vehicle for subtext in the mid-century work of Carroll Cloar.
 
The exhibition, which includes almost seventy paintings, includes loans from the Metropolitan Museum of Art, the Whitney Museum of American Art, Crystal Bridges Museum of American Art, and the Hirshorn Museum and Gardens, in addition to the collection of the Memphis Brooks Museum of Art and private collections.  The exhibition continues at Brooks through September 15, and then travels on a national tour that includes the Arkansas Arts Center and the Georgia Museum of Art through 2014. 
 
For those reading the version of this blog via email subscription, please remember that the regular web version of The Devoted Classicist offers additional features for your enjoyment.



Andalusia, Historic Courtyard Apartments

$
0
0
A view of the central courtyard at Andalusia,
the West Hollywood apartment building.
Photo by John Vaughan for Architectural Digest.
A number of Spanish Revival courtyard apartment buildings were built in Los Angeles in the early decades of the twentieth century, inspired by the Franciscan missions and the early tourist camps.  But one of the finest and most influential of these was Andalusia a 1926 complex of ten units designed by the husband & wife team of Arthur and Nina Zwebell.

A street view of Andalusia,
1471 1475 Havenhurst Drive, West Hollywood.
Photo via Wikipedia. 
After visiting Los Angeles in 1920, the Zwebells moved there in 1921 to make their fortune in the building boom.  Arthur Zwebell had made a nest egg with profits from a company he developed with his brothers that offered a roadster sports car body for a standard Ford chassis.

Arthur Zwebell was a self-taught architect and Nina provided the interior design services for the furnished apartments, even having furniture made to compliment the architecture.  They built eight of these buildings, living in Andalusia and working out of home offices there.

Vintage views of Andalusia,
showing the outer courtyard (upper)
and central courtyard (lower).
Photos from
COURTYARD HOUSING IN LOS ANGELES
Each apartment had a unique floor plan with the Zwebells' unit having a two story living room and three fireplaces.  Zina had an infamous built-in pipe organ;  the bellows were located in the basement with the pipes installed at opposite ends of the living room.  The Zwebells lived at Andalusia for only four years and then gave it to their neice, Marian Uhl.

Andalusia Ground Floor Plan, Roof Plan,
and Building Section.
Drawings from the book
COURTYARD HOUSING IN LOS ANGELES.
Over the years, Mrs. Uhl rented apartments at Andalusia to a number of Hollywood actors and writers such as Clara Bow, Clair Bloom, Cesar Romero, Jean Hagen, John Payne, Louis L'Amour, and Anna Kashfi (later married to Marlon Brando and mother of Christian Brando).  Mrs. Uhl lived in the building until her death in 1990.  She had kept an archive of blueprints, photos, repair bills, and fabric samples that revealed that the building had been preserved and hardly altered.

A publicity photo of actress and singer
Bernice Claire at Nina Zwebell's organ.
Photo via Wikipedia.
In 1990, Los Angeles interior designer and antiques dealer Craig Wright bought the building with business partners Don and Alice Willfong.  They restored and subtly updated Andalusia while remaining conscious of its architectural integrity.  Plumbing and wiring was replaced, doors and windows were duplicated as necessary, and a laundry was installed in the basement along with air-conditioning throughout.  Some apartments were combined to reduce the total to eight units which were rented furnished.  The third courtyard had a raised swimming pool which was not original, it was removed and the area became an annex for displaying garden ornaments and stone furniture from Quatrain, an antique gallery and reproduction business owned by Wright, and a part of the extremely stylish San Francisco-based stores that are grouped under the name of Therien.

Another publicity photo of actress
and singer Bernice Claire
who appeared in 13 films
in the 1930s.
Photo from COURTYARD HOUSING IN LOS ANGELES.
Craig Wright took the Zwebells' apartment as his own residence.  He turned the upstairs tower room that the Zwebells had used as their office into his Master Bedroom.  The former master bedroom downstairs is now a Guest Bedroom.  After ten years, Wright moved to a house he renovated in the hills above Sunset Boulevard that was featured in the February 2001 issue of Architectural Digest that can be seen here.  But the photos by John Vaughan of Craig Wright's Andalusia apartment from the December 1993 issue of Architectural Digest are presented as follows.
The floor plan of what was originally the owners' apartment
from a 2010 MLS ad via Curbed.
One end of the Living Room with the
stairs up to the Master Bedroom and Bath.
Photo from the December, 1993, issue of
Architectural Digest.
Wright used furnishings of several periods and styles from Quatrain in addition to shelves of books to give the Living Room a Continental feel.  
Another view of the Living Room
as it appeared in the December, 1993,
issue of Architectural Digest.
In the Dining Room, a mix of furnishings, again from Quatrain, provide a rich contrast to the double-thick brick walls, developed for earthquake-resistance.

The Dining Room as it appeared
in the December, 1993, issue of Architectural Digest.
The ground floor Sitting Room (labeled Sunroom on the 2010 MLS floor plan) is an intimate space that Wright used for reading.

The ground floor Sitting Room as it appeared
in the December, 1993, issue of Architectural Digest.
The Tudor-style bed had been used in films such as "Tom Jones" and "Mary Queen of Scots" commands the ground floor bedroom that Wright used as a Guest Bedroom.

The Guest Bedroom as it appeared
in the December, 1993, issue of Architectural Digest.
The walls of the Master Bathroom were painted in a manner to evoke the feeling of Pompeian frescoes.  The lavatory is set into a neoclassical console that Wright found in Rome.

The Master Bathroom, as it appeared
in the December, 1993, issue of Architectural Digest.
The central courtyard plantings were revitalized by landscape architect Robert Fletcher.  The pool and outdoor fireplace were original features that were restored.

The central courtyard pool and outdoor
fireplace as it appeared in the December, 1993,
issue of Architectural Digest.
After the collapse of the private housing market in 1929, the Zwebells went into work as set designers for the movie studios, furniture design and production, and later attempted a business to manufacture modular housing systems.  With the exception of three houses designed for his family, Arthur Zwebell did not practice architecture again.  He died in 1973 and his wife died the next year.  Their contributions to traditional urban housing form of an adapted California courtyard is still valued today, however.  Andalusia is now a condominium and the owner's unit of 1,589 square feet was listed and sold in 2010 for the asking price of $990,000 according to Redfin.  (It was a resale since Craig Wright's occupancy).

For more about the other apartment buildings designed by the Zwebells as well as other similar buildings see the valuable reference book COURTYARD HOUSING IN LOS ANGELES by Stefanos Polyzoides, Roger Sherwood, and James Tice, now in its fifth printing after being originally published in 1996.
Viewing all 135 articles
Browse latest View live